+48 723 568 558 +48 797 864 298 Postępu 15, 05-500 Nowa Wola info@avahouse.pl























Domek Letniskowy OLEK - Twoja Przestrzeń na Spokojne Chwile! 

Przedstawiamy domek letniskowy OLEK, który łączy funkcjonalność z komfortem. Idealny do spędzania czasu z rodziną i przyjaciółmi, ten domek jest doskonałym wyborem dla tych, którzy pragną oderwać się od codzienności i cieszyć się bliskością natury.


Dane techniczne, które fascynują:

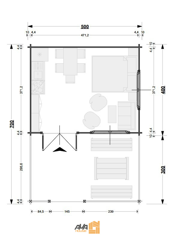
  • Wymiary z elementami wystającymi: 500 x 704 cm 
  • Wymiary bez elementów wystających: 480 x 684 cm 
  • Grubość ściany: 45 mm — skuteczna izolacja termiczna na każdy sezon. 
  • Wysokość ściany: 216 cm oraz wysokość w szczycie: 300 cm — przestronność, która zapewnia komfort użytkowania. 
  • Powierzchnia zabudowy: 17,5 + 13,5 = 31 m² — wystarczająco dużo miejsca na relaks. 
  • Powierzchnia dachu: 42 m² z kątem nachylenia 15° — elegancki wygląd i praktyczność. 
  • Wypust dachu: 300 cm — dodatkowa ochrona przed warunkami atmosferycznymi. 
  • Grubość deski dachowej: 19 mm oraz grubość deski podłogowej: 28 mm — klasyczne materiały, które zapewniają trwałość.

 Funkcjonalne drzwi i okna:

  • Ilość drzwi: 1 x 1560 x 2020 mm, 2 x 800 x 1940 mm, 1 x 700 x 2050 mm — wygodny dostęp do wnętrza.
  • Ilość podwójnych okien uchylnych: 2 x 630 x 1800 mm — idealne doświetlenie oraz wentylacja.

 Wysoka jakość wykonania:
Domek OLEK w stanie surowym zamkniętym zawiera:

  • Ściany z balika 45 mm,
  • Drewniane drzwi zewnętrzne (oszklone),
  • Drewniane drzwi wewnętrzne,
  • Drewniane okna z podwójną szybą,
  • Drewniane ścianki działowe oraz piękną drewnianą podłogę.

 Transport i dodatkowe usługi:

  • Transport: Cena wycena indywidualna, liczona od Nowej Woli 05-500.
  • Wprowadzenie elektryki i hydrauliki do domku w cenie montażu.

Termin montażu: uzgadniany z klientem indywidualnie.


Nie zwlekaj! Kupić domek letniskowy OLEK to inwestycja w Twój komfort i chwile relaksu w naturze. Producent Avahouse zapewnia wysoką jakość wykonania i niezawodność!

Wymiar z el. wystającymi:

500x704 cm

Wymiar bez el. wystających:

480x684 cm

Grubość ściany:

45 mm

Wysokość ściany:

216 cm

Wysokość w szczycie:

300 cm

Powierzchnia zabudowy:

17,5 + 13,5 = 31 m2

Powierzchnia dachu:

42 m2

Kąt nachylenia dachu:

15o

Wypust dachu:

300 cm

Grubość deski dachowej:

19 mm

Grubość deski podłogowej:

28 mm

Ilość drzwi:

1x 1560x2020 mm

Ilość podw. okien uch. rozw.:

2x 1560x1050 mm

1 / 3

25600

(Cena brutto)
U nas kupisz na raty, wyślij formularz z adnotacją „na raty”, a nasz specjalista skontaktuje się z Tobą

Imię

E-mail

Telefon

Wiadomość

    























Domek Letniskowy OLEK - Twoja Przestrzeń na Spokojne Chwile! 

Przedstawiamy domek letniskowy OLEK, który łączy funkcjonalność z komfortem. Idealny do spędzania czasu z rodziną i przyjaciółmi, ten domek jest doskonałym wyborem dla tych, którzy pragną oderwać się od codzienności i cieszyć się bliskością natury.


Dane techniczne, które fascynują:

  • Wymiary z elementami wystającymi: 500 x 704 cm 
  • Wymiary bez elementów wystających: 480 x 684 cm 
  • Grubość ściany: 45 mm — skuteczna izolacja termiczna na każdy sezon. 
  • Wysokość ściany: 216 cm oraz wysokość w szczycie: 300 cm — przestronność, która zapewnia komfort użytkowania. 
  • Powierzchnia zabudowy: 17,5 + 13,5 = 31 m² — wystarczająco dużo miejsca na relaks. 
  • Powierzchnia dachu: 42 m² z kątem nachylenia 15° — elegancki wygląd i praktyczność. 
  • Wypust dachu: 300 cm — dodatkowa ochrona przed warunkami atmosferycznymi. 
  • Grubość deski dachowej: 19 mm oraz grubość deski podłogowej: 28 mm — klasyczne materiały, które zapewniają trwałość.

 Funkcjonalne drzwi i okna:

  • Ilość drzwi: 1 x 1560 x 2020 mm, 2 x 800 x 1940 mm, 1 x 700 x 2050 mm — wygodny dostęp do wnętrza.
  • Ilość podwójnych okien uchylnych: 2 x 630 x 1800 mm — idealne doświetlenie oraz wentylacja.

 Wysoka jakość wykonania:
Domek OLEK w stanie surowym zamkniętym zawiera:

  • Ściany z balika 45 mm,
  • Drewniane drzwi zewnętrzne (oszklone),
  • Drewniane drzwi wewnętrzne,
  • Drewniane okna z podwójną szybą,
  • Drewniane ścianki działowe oraz piękną drewnianą podłogę.

 Transport i dodatkowe usługi:

  • Transport: Cena wycena indywidualna, liczona od Nowej Woli 05-500.
  • Wprowadzenie elektryki i hydrauliki do domku w cenie montażu.

Termin montażu: uzgadniany z klientem indywidualnie.


Nie zwlekaj! Kupić domek letniskowy OLEK to inwestycja w Twój komfort i chwile relaksu w naturze. Producent Avahouse zapewnia wysoką jakość wykonania i niezawodność!

Wymiar z el. wystającymi:

500x704 cm

Wymiar bez el. wystających:

480x684 cm

Grubość ściany:

45 mm

Wysokość ściany:

216 cm

Wysokość w szczycie:

300 cm

Powierzchnia zabudowy:

17,5 + 13,5 = 31 m2

Powierzchnia dachu:

42 m2

Kąt nachylenia dachu:

15o

Wypust dachu:

300 cm

Grubość deski dachowej:

19 mm

Grubość deski podłogowej:

28 mm

Ilość drzwi:

1x 1560x2020 mm

Ilość podw. okien uch. rozw.:

2x 1560x1050 mm

1 / 3
25600 (Cena brutto)
U nas kupisz na raty, wyślij formularz z adnotacją „na raty”, a nasz specjalista skontaktuje się z Tobą

Imię

E-mail

Telefon

Wiadomość

    

25600

Kup