+48 723 568 558 +48 797 864 298 Postępu 15, 05-500 Nowa Wola info@avahouse.pl





















Domek Everest od Avahouse - idealne rozwiązanie na Twoją działkę ogrodową! 

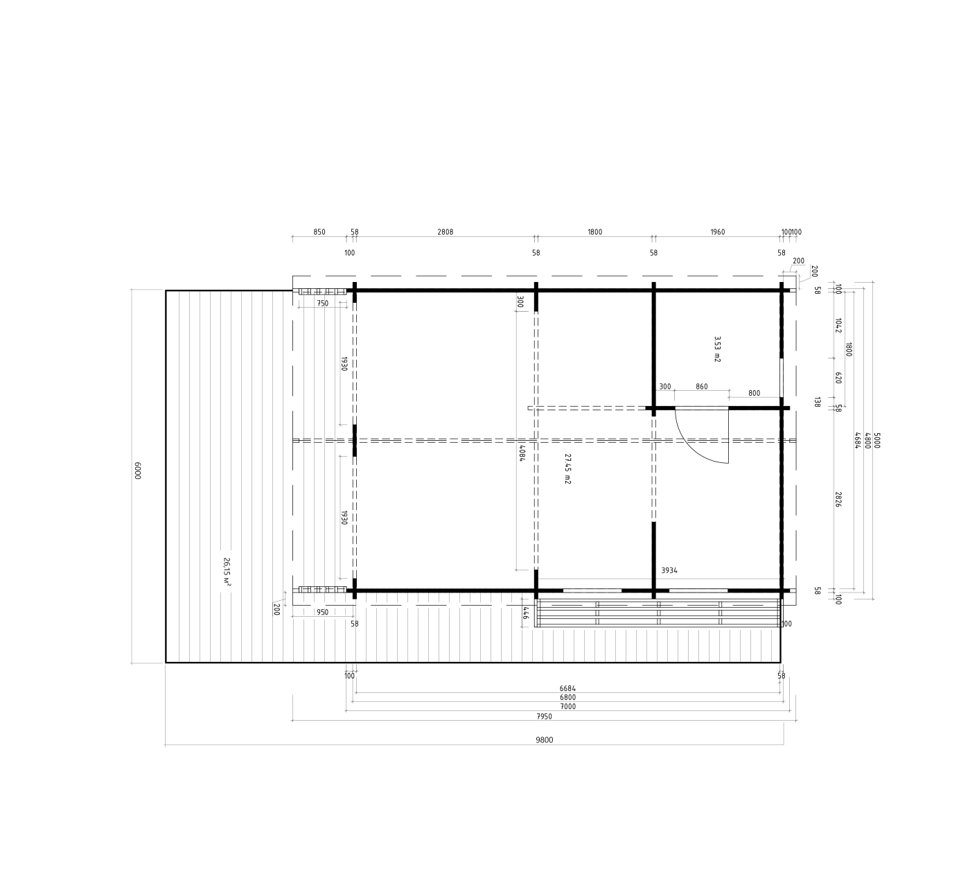
Domek Everest charakteryzuje się wymiarami zewnętrznymi 5 x 7,04 m oraz przestronnymi wymiarami wewnętrznymi 4,68 x 6,68 m, co sprawia, że jest doskonałym miejscem do wypoczynku z rodziną i przyjaciółmi.

Specyfikacja:

  • Grubość ścian: 58 mm, zapewniająca odpowiednią izolację termiczną, co umożliwia komfortowe korzystanie przez cały rok.
  • Materiał: Wykonany z drewna świerkowego i sosnowego, domek odznacza się trwałością i estetycznym wyglądem, idealnie wpisując się w naturalne otoczenie.
  • Funkcjonalność: To nowoczesne rozwiązanie, które łączy komfort z praktycznością, stwarzając doskonałe warunki do relaksu i rekreacji.

Montaż domku Everest możesz przeprowadzić we własnym zakresie, ale również oferujemy profesjonalny montaż przez naszych specjalistów. Dodatkowo, zapewniamy transport, co czyni zakup domku jeszcze łatwiejszym.

Zainwestuj w domek letniskowy Everest od Avahouse i ciesz się rodzinnym wypoczynkiem blisko natury. To idealne miejsce na letnie weekendy, spotkania z bliskimi oraz relaks w otoczeniu zieleni.

Skontaktuj się z nami, aby dowiedzieć się więcej i zrealizować swoje marzenia o własnym letniskowym domku!

Wymiar z el. wystającymi:

5 x 7 m

Wymiar bez el. wystających:

4,80 x 6,80 m

Grubość ściany:

58 mm

Wysokość ściany:

250 cm

Wysokość w szczycie:

533 cm

Powierzchnia:

65 m2 + taras 21,7 m2

Powierzchnia dachu:

51 m2

Kąt nachylenia dachu:

32°

Wypust dachu:

85/20 cm

Grubość deski dachowej:

28 cm

Grubość deski podłogowej:

28 cm

Wymiar belki podwalinowej:

45x95 mm

Ilość drzwi:

1x 900x2050 mm, 3x 800x2050 mm

Ilość okien nieotwieralnych:

1x 900x2050mm (ISO), 2x 1900x1900 mm

Ilość okien uch. rozw.:

1x 900x2050 mm (ISO)

Ilość podw. okien uch. rozw.:

2x 1900x2050 mm (ISO)

93900

(Cena brutto)
U nas kupisz na raty, wyślij formularz z adnotacją „na raty”, a nasz specjalista skontaktuje się z Tobą

Imię

E-mail

Telefon

Wiadomość

    





















Domek Everest od Avahouse - idealne rozwiązanie na Twoją działkę ogrodową! 

Domek Everest charakteryzuje się wymiarami zewnętrznymi 5 x 7,04 m oraz przestronnymi wymiarami wewnętrznymi 4,68 x 6,68 m, co sprawia, że jest doskonałym miejscem do wypoczynku z rodziną i przyjaciółmi.

Specyfikacja:

  • Grubość ścian: 58 mm, zapewniająca odpowiednią izolację termiczną, co umożliwia komfortowe korzystanie przez cały rok.
  • Materiał: Wykonany z drewna świerkowego i sosnowego, domek odznacza się trwałością i estetycznym wyglądem, idealnie wpisując się w naturalne otoczenie.
  • Funkcjonalność: To nowoczesne rozwiązanie, które łączy komfort z praktycznością, stwarzając doskonałe warunki do relaksu i rekreacji.

Montaż domku Everest możesz przeprowadzić we własnym zakresie, ale również oferujemy profesjonalny montaż przez naszych specjalistów. Dodatkowo, zapewniamy transport, co czyni zakup domku jeszcze łatwiejszym.

Zainwestuj w domek letniskowy Everest od Avahouse i ciesz się rodzinnym wypoczynkiem blisko natury. To idealne miejsce na letnie weekendy, spotkania z bliskimi oraz relaks w otoczeniu zieleni.

Skontaktuj się z nami, aby dowiedzieć się więcej i zrealizować swoje marzenia o własnym letniskowym domku!

Wymiar z el. wystającymi:

5 x 7 m

Wymiar bez el. wystających:

4,80 x 6,80 m

Grubość ściany:

58 mm

Wysokość ściany:

250 cm

Wysokość w szczycie:

533 cm

Powierzchnia:

65 m2 + taras 21,7 m2

Powierzchnia dachu:

51 m2

Kąt nachylenia dachu:

32°

Wypust dachu:

85/20 cm

Grubość deski dachowej:

28 cm

Grubość deski podłogowej:

28 cm

Wymiar belki podwalinowej:

45x95 mm

Ilość drzwi:

1x 900x2050 mm, 3x 800x2050 mm

Ilość okien nieotwieralnych:

1x 900x2050mm (ISO), 2x 1900x1900 mm

Ilość okien uch. rozw.:

1x 900x2050 mm (ISO)

Ilość podw. okien uch. rozw.:

2x 1900x2050 mm (ISO)

93900 (Cena brutto)
U nas kupisz na raty, wyślij formularz z adnotacją „na raty”, a nasz specjalista skontaktuje się z Tobą

Imię

E-mail

Telefon

Wiadomość

    

93900

Kup