+48 723 568 558 +48 797 864 298 Postępu 15, 05-500 Nowa Wola info@avahouse.pl



















Domek Całoroczny BOLONIA - Idealne Miejsce na Codzienny Relaks!

Prezentujemy domek całoroczny BOLONIA, który łączy w sobie wygodę, nowoczesny design i bliskość natury. Idealny dla osób pragnących stworzyć komfortową przestrzeń do życia, ten domek zapewni Ci wszystko, czego potrzebujesz.


 Dane techniczne, które zachwycają:

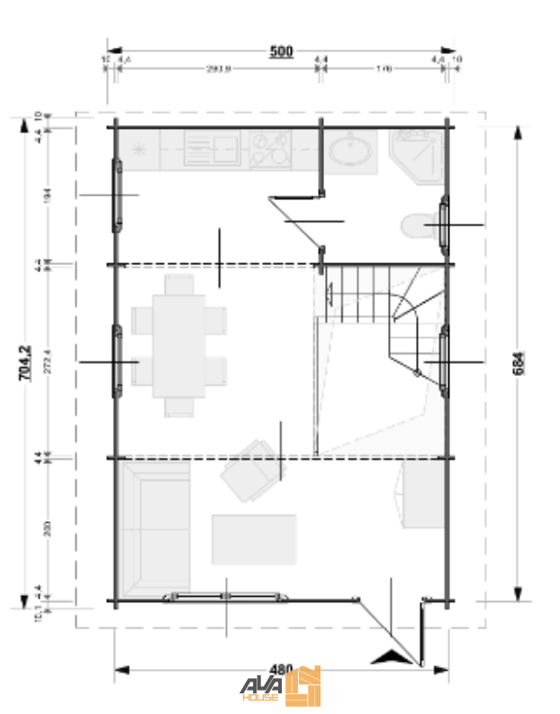
  • Liczba pomieszczeń: 6 — wystarczająco dużo miejsca dla całej rodziny.
  • Wymiary zewnętrzne: 5,0 x 7,0 m 
  • Wymiary wewnętrzne: 4,38 x 6,38 m 
  • Materiał: Świerk i sosna, które zapewniają estetyczny wygląd oraz trwałość. 
  • Grubość ścian: 45 + 100 + 20 mm — doskonała izolacja termiczna, a także komfort przez cały rok.
  • Powierzchnia domku: 50 m² — idealna na różnorodne aranżacje wnętrz.
  • Deski dachowe: 20 mm, powierzchnia dachu: 53 m² z wypustem dachu: 0,5 m.
  • Wysokość ściany bocznej: 2,20 m oraz wysokość w szczycie: 4,82 m — przestronność i swoboda ruchu.
  • Kąt dachu: 30 stopni — skuteczna wentylacja i estetyka budynku.

Funkcjonalne drzwi i okna:

  • Ilość drzwi: 1x 900x2050 mm oraz 3x 700x2000 mm, co zapewnia wygodny dostęp do wnętrza. 
  • Okna: 5x pojedyncze uchylne rozwierane (850x1050 mm) oraz 1x 550x550 mm dla doskonałego doświetlenia, a także podwójne okno uchylne rozwierane: 1x (1550x1050 mm) — więcej światła w Twoim domu!

Domek BOLONIA w stanie surowym zamkniętym zawiera:

  • Ściany z balika 45 mm,
  • 100 mm wełny mineralnej dla lepszej izolacji,
  • 20 mm deska boazeryjna,
  • Drewniane drzwi zewnętrzne (oszklone lub pełne),
  • Drewniane drzwi wewnętrzne,
  • Drewniane okna z podwójną szybą,
  • Ścianki działowe,
  • Drewniana podłoga i dach,
  • Drewniane schody zabiegowe.

Transport i dodatkowe usługi:

  • Transport: Cena uzależniona od miejsca dostawy — liczona od Nowej Woli 05-500.
  • Wprowadzenie elektryki i hydrauliki do domku jest w cenie montażu.
  • Termin montażu ustalany indywidualnie z klientem.
  • Czas trwania montażu wynosi od 5 do 10 dni.

Zainwestuj w domek całoroczny BOLONIA od Avahouse i twórz niezapomniane wspomnienia w otoczeniu pięknej natury!

Liczba pomieszczeń:

6

Wymiary zewnętrzne:

5,0x7,0m

Wymiary wewnętrzne:

4,38x6,38m

Materiał:

świerk, sosna

Grubość ścian:

45+100+20mm

Powierzchnia domku:

50m2

Deski dachowe:

20mm

Powierzchnia dachu:

53m2

Wypust dachu:

0,5m

Wysokość ściany bocznej:

2,20m

Wysokość w szczycie:

4,82m

Kąt dachu:

30 stopni

Ilość drzwi:

1x 900x2050 mm, 3x 700x2000 mm

Ilość okien pojedynczych uch. rozw.

5x 850x1050 mm, 1x 550x550 mm

Ilość okien podwójnych uch. Rozw.

1 x 1550 x 1050 mm

Legary:

impregnowane

Podłoga:

28mm

92700

(Cena brutto)
U nas kupisz na raty, wyślij formularz z adnotacją „na raty”, a nasz specjalista skontaktuje się z Tobą

Imię

E-mail

Telefon

Wiadomość

    



















Domek Całoroczny BOLONIA - Idealne Miejsce na Codzienny Relaks!

Prezentujemy domek całoroczny BOLONIA, który łączy w sobie wygodę, nowoczesny design i bliskość natury. Idealny dla osób pragnących stworzyć komfortową przestrzeń do życia, ten domek zapewni Ci wszystko, czego potrzebujesz.


 Dane techniczne, które zachwycają:

  • Liczba pomieszczeń: 6 — wystarczająco dużo miejsca dla całej rodziny.
  • Wymiary zewnętrzne: 5,0 x 7,0 m 
  • Wymiary wewnętrzne: 4,38 x 6,38 m 
  • Materiał: Świerk i sosna, które zapewniają estetyczny wygląd oraz trwałość. 
  • Grubość ścian: 45 + 100 + 20 mm — doskonała izolacja termiczna, a także komfort przez cały rok.
  • Powierzchnia domku: 50 m² — idealna na różnorodne aranżacje wnętrz.
  • Deski dachowe: 20 mm, powierzchnia dachu: 53 m² z wypustem dachu: 0,5 m.
  • Wysokość ściany bocznej: 2,20 m oraz wysokość w szczycie: 4,82 m — przestronność i swoboda ruchu.
  • Kąt dachu: 30 stopni — skuteczna wentylacja i estetyka budynku.

Funkcjonalne drzwi i okna:

  • Ilość drzwi: 1x 900x2050 mm oraz 3x 700x2000 mm, co zapewnia wygodny dostęp do wnętrza. 
  • Okna: 5x pojedyncze uchylne rozwierane (850x1050 mm) oraz 1x 550x550 mm dla doskonałego doświetlenia, a także podwójne okno uchylne rozwierane: 1x (1550x1050 mm) — więcej światła w Twoim domu!

Domek BOLONIA w stanie surowym zamkniętym zawiera:

  • Ściany z balika 45 mm,
  • 100 mm wełny mineralnej dla lepszej izolacji,
  • 20 mm deska boazeryjna,
  • Drewniane drzwi zewnętrzne (oszklone lub pełne),
  • Drewniane drzwi wewnętrzne,
  • Drewniane okna z podwójną szybą,
  • Ścianki działowe,
  • Drewniana podłoga i dach,
  • Drewniane schody zabiegowe.

Transport i dodatkowe usługi:

  • Transport: Cena uzależniona od miejsca dostawy — liczona od Nowej Woli 05-500.
  • Wprowadzenie elektryki i hydrauliki do domku jest w cenie montażu.
  • Termin montażu ustalany indywidualnie z klientem.
  • Czas trwania montażu wynosi od 5 do 10 dni.

Zainwestuj w domek całoroczny BOLONIA od Avahouse i twórz niezapomniane wspomnienia w otoczeniu pięknej natury!

Liczba pomieszczeń:

6

Wymiary zewnętrzne:

5,0x7,0m

Wymiary wewnętrzne:

4,38x6,38m

Materiał:

świerk, sosna

Grubość ścian:

45+100+20mm

Powierzchnia domku:

50m2

Deski dachowe:

20mm

Powierzchnia dachu:

53m2

Wypust dachu:

0,5m

Wysokość ściany bocznej:

2,20m

Wysokość w szczycie:

4,82m

Kąt dachu:

30 stopni

Ilość drzwi:

1x 900x2050 mm, 3x 700x2000 mm

Ilość okien pojedynczych uch. rozw.

5x 850x1050 mm, 1x 550x550 mm

Ilość okien podwójnych uch. Rozw.

1 x 1550 x 1050 mm

Legary:

impregnowane

Podłoga:

28mm

92700 (Cena brutto)
U nas kupisz na raty, wyślij formularz z adnotacją „na raty”, a nasz specjalista skontaktuje się z Tobą

Imię

E-mail

Telefon

Wiadomość

    

92700

Kup