+48 723 568 558 +48 797 864 298 Postępu 15, 05-500 Nowa Wola info@avahouse.pl





















Domek letniskowy Denali – Jasne wnętrze i imponujący taras

Denali to projekt, który zachwyca od pierwszego wejrzenia. Jego absolutnie największym atutem jest potężny taras w kształcie litery L, który płynnie łączy się z bryłą budynku. Część tarasu od frontu jest praktycznie zadaszona przez wystający balkon, co tworzy idealne miejsce do wypoczynku niezależnie od pogody. Mimo tak dużego rozmachu, sama powierzchnia zabudowy części mieszkalnej wynosi nieco ponad 30 m², co oznacza, że domek postawisz na zgłoszenie, bez pozwolenia budowlanego.

Konstrukcja została wykonana z wysokiej jakości litego bala świerkowego o grubości 58 mm. Ściany łączone metodą pióro-wpust oraz solidne podwaliny gwarantują trwałość i bezpieczeństwo na lata.

Słońce w każdym pomieszczeniu

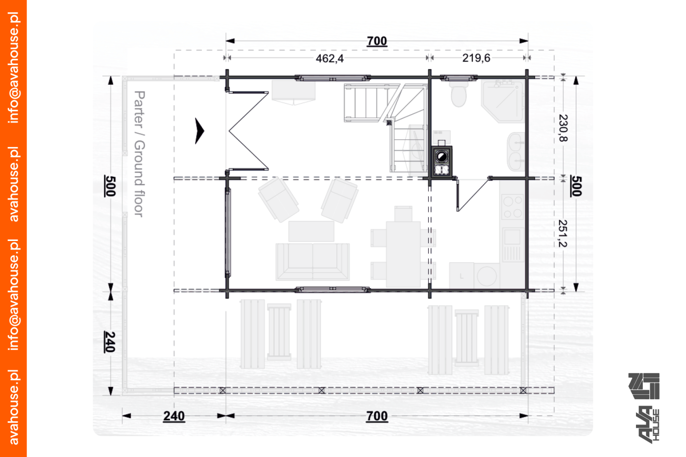
Wnętrze Alicji II zostało zaprojektowane z myślą o maksymalnym doświetleniu. Prowadzą do niego dwuskrzydłowe, niemal całkowicie przeszklone drzwi. Na parterze znajduje się przestronna strefa dzienna: przechodni salon (ok. 21 m²), z którego łatwo dostać się do wnęki kuchennej oraz komfortowej łazienki umiejscowionej w tylnej części domku.

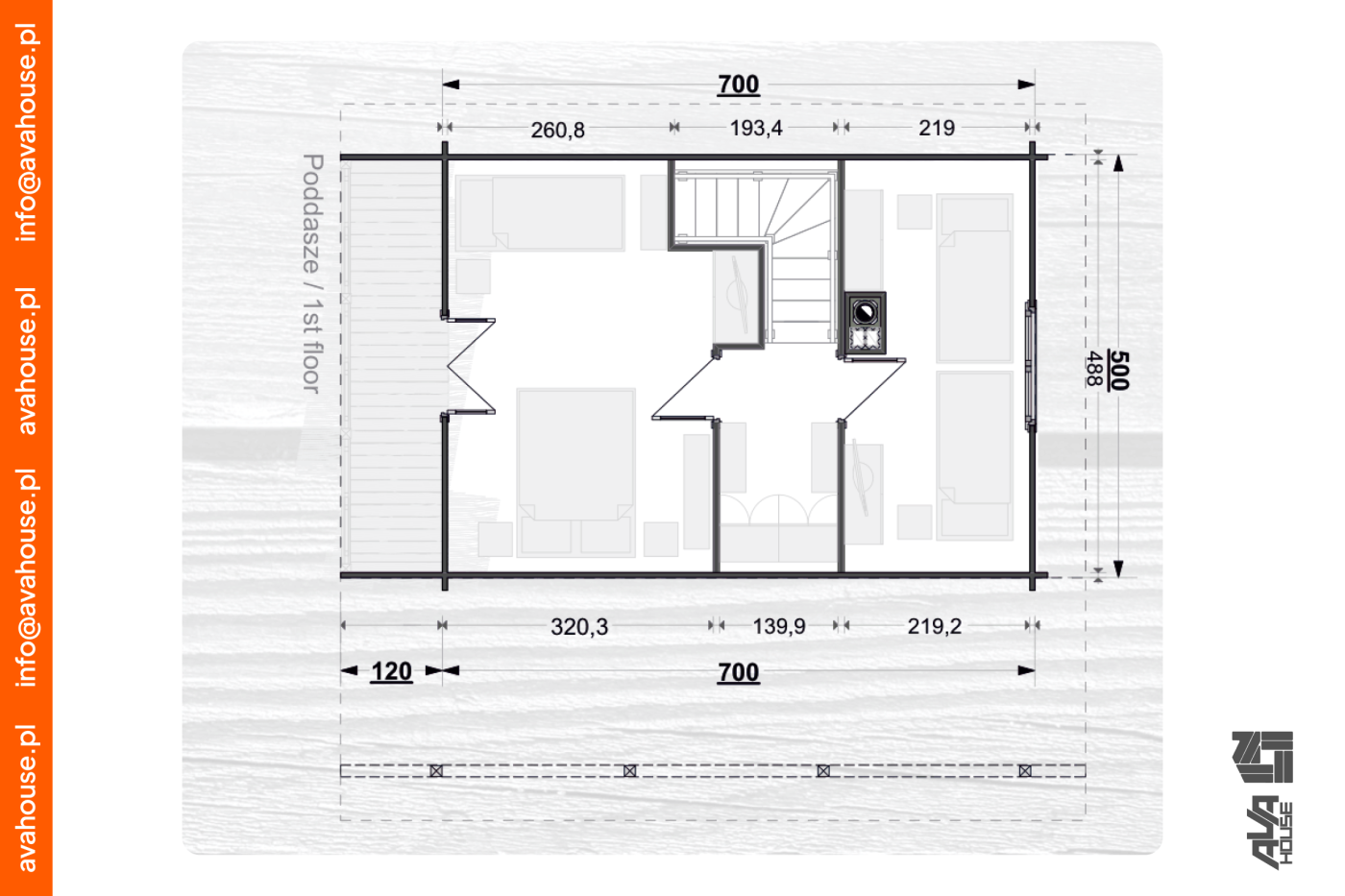
Poddasze to cicha strefa nocna. Znajdziemy tam dwie sypialnie – mniejszą (9 m²) zlokalizowaną za klatką schodową oraz większą (14 m²), z której prowadzą bezpośrednie drzwi na urokliwy balkon.

Zbuduj swój azyl z AVAHouse

Wymiar z el. wystającymi:

740x940 cm

Wymiar bez el. wystających:

720x920 cm

Grubość ściany:

58 mm

Wysokość ściany:

232 cm

Wysokość w szczycie:

625 cm

Powierzchnia zabudowy:

30,44 + 34,56 m2 (parter), 26,98 + 6 m2 (poddasze)

Powierzchnia dachu:

120 m2

Kąt nachylenia dachu:

45

Wypust dachu:

120 cm

Grubość deski dachowej:

19 mm

Grubosć deski podłogowej:

28 mm

Wymiar belki podwalinowej:

45x95 mm

Ilość drzwi:

1x 1900x2090 mm, 1x 1200x2090 mm, 3x 800x2050 mm

Ilość okien nieotwieralnych:

1x 1900x2090 mm (ISO)

Ilość okien rozwieranych:

1x 550x550 mm (ISO)

Ilość podw. okien uch. rozw.:

2x 1600x1080 mm (ISO), 1x 1400x1080 mm

1 / 2

126800

(Cena brutto)
U nas kupisz na raty, wyślij formularz z adnotacją „na raty”, a nasz specjalista skontaktuje się z Tobą

Imię

E-mail

Telefon

Wiadomość

    





















Domek letniskowy Denali – Jasne wnętrze i imponujący taras

Denali to projekt, który zachwyca od pierwszego wejrzenia. Jego absolutnie największym atutem jest potężny taras w kształcie litery L, który płynnie łączy się z bryłą budynku. Część tarasu od frontu jest praktycznie zadaszona przez wystający balkon, co tworzy idealne miejsce do wypoczynku niezależnie od pogody. Mimo tak dużego rozmachu, sama powierzchnia zabudowy części mieszkalnej wynosi nieco ponad 30 m², co oznacza, że domek postawisz na zgłoszenie, bez pozwolenia budowlanego.

Konstrukcja została wykonana z wysokiej jakości litego bala świerkowego o grubości 58 mm. Ściany łączone metodą pióro-wpust oraz solidne podwaliny gwarantują trwałość i bezpieczeństwo na lata.

Słońce w każdym pomieszczeniu

Wnętrze Alicji II zostało zaprojektowane z myślą o maksymalnym doświetleniu. Prowadzą do niego dwuskrzydłowe, niemal całkowicie przeszklone drzwi. Na parterze znajduje się przestronna strefa dzienna: przechodni salon (ok. 21 m²), z którego łatwo dostać się do wnęki kuchennej oraz komfortowej łazienki umiejscowionej w tylnej części domku.

Poddasze to cicha strefa nocna. Znajdziemy tam dwie sypialnie – mniejszą (9 m²) zlokalizowaną za klatką schodową oraz większą (14 m²), z której prowadzą bezpośrednie drzwi na urokliwy balkon.

Zbuduj swój azyl z AVAHouse

Wymiar z el. wystającymi:

740x940 cm

Wymiar bez el. wystających:

720x920 cm

Grubość ściany:

58 mm

Wysokość ściany:

232 cm

Wysokość w szczycie:

625 cm

Powierzchnia zabudowy:

30,44 + 34,56 m2 (parter), 26,98 + 6 m2 (poddasze)

Powierzchnia dachu:

120 m2

Kąt nachylenia dachu:

45

Wypust dachu:

120 cm

Grubość deski dachowej:

19 mm

Grubosć deski podłogowej:

28 mm

Wymiar belki podwalinowej:

45x95 mm

Ilość drzwi:

1x 1900x2090 mm, 1x 1200x2090 mm, 3x 800x2050 mm

Ilość okien nieotwieralnych:

1x 1900x2090 mm (ISO)

Ilość okien rozwieranych:

1x 550x550 mm (ISO)

Ilość podw. okien uch. rozw.:

2x 1600x1080 mm (ISO), 1x 1400x1080 mm

1 / 2
126800 (Cena brutto)
U nas kupisz na raty, wyślij formularz z adnotacją „na raty”, a nasz specjalista skontaktuje się z Tobą

Imię

E-mail

Telefon

Wiadomość

    

126800

Kup
Ostatnio oglądane
Domek letniskowy Julia 3,8x5,3
Nowość

Domek letniskowy Julia 3,8x5,3

Wymiary zewnętrzne (m)

380x530

Wymiary wewnętrzne (m)

360x510

Materiał budowlany

sosna i świerk naturalny

17800 (Cena brutto)

Oferta