+48 723 568 558 +48 797 864 298 Postępu 15, 05-500 Nowa Wola info@avahouse.pl























Domek letniskowy z poddaszem Tatry (35 m²) – Przestrzeń i solidność

Dom Tatry to dopracowany technologicznie domek z poddaszem użytkowym, zaprojektowany z myślą o maksymalnej funkcjonalności na działce rekreacyjnej. Dzięki powierzchni zabudowy równej 35 m², jego budowa nie wymaga pozwolenia – wystarczy zwykłe zgłoszenie.

Konstrukcja opiera się na grubych, 60-milimetrowych balach ze świerku litego, łączonych precyzyjną metodą pióro-wpust. Każdy element jest obrabiany cyfrowo, co gwarantuje idealne spasowanie i stabilność na lata. Po zastosowaniu opcjonalnego ocieplenia, budynek z powodzeniem pełni funkcję domu całorocznego.

Układ pomieszczeń (6 stref użytkowych)

Wnętrze zostało podzielone tak, aby zapewnić komfort całej rodzinie. Duże, podwójnie przeszklone okna (technologia zespolona) gwarantują doskonałe doświetlenie.

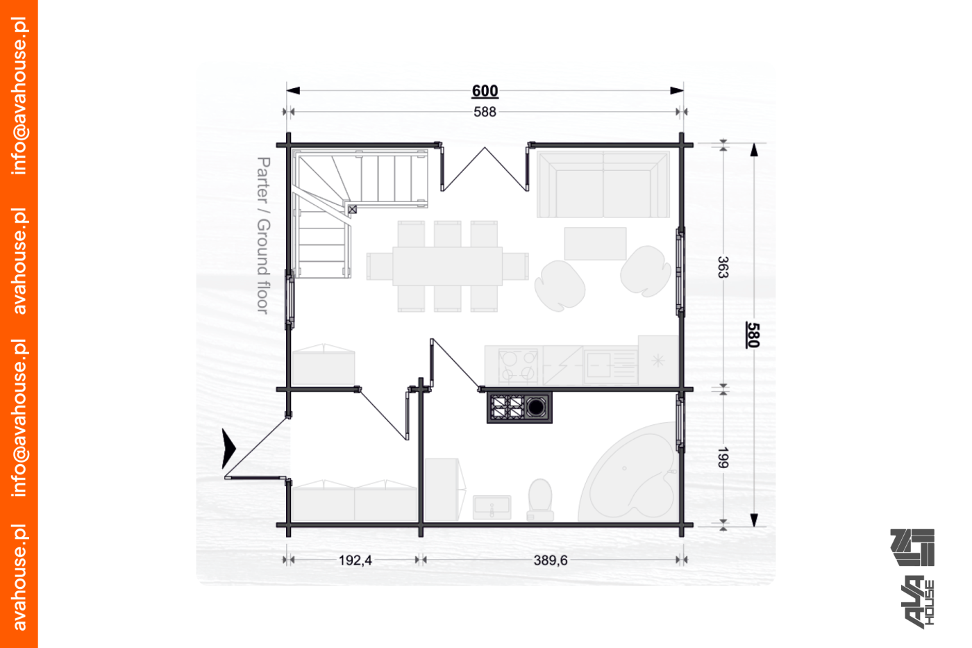
  • Parter (strefa dzienna): Wiatrołap (3,36 m²), przestronny pokój dzienny z aneksem kuchennym (19,81 m²) oraz wydzielona łazienka (6,59 m²). Z salonu prowadzą dwuskrzydłowe drzwi z opcją wyjścia na taras.
  • Poddasze (strefa nocna): Dwie niezależne sypialnie (9,7 m² i 9,09 m²) oraz praktyczny pokój przechodni (7,64 m²).

Opcje dodatkowe i personalizacja

Domek sprzedawany jest w wersji do samodzielnego montażu z pełną instrukcją, jednak oferujemy szeroki pakiet usług dodatkowych. Możesz zlecić nam m.in.: pokrycie dachu blachodachówką, malowanie, montaż rynien, okiennic oraz transport.

Kompleksowa realizacja – od fundamentu po klucze

Wymiar z el. wystającymi:

600x620 cm

Wymiar bez el. wystających:

580x600 cm

Grubość ściany:

60 mm

Wysokość ściany:

245 cm

Wysokość w szczycie:

635 cm

Powierzchnia zabudowy:

35 + 26,5 m2

Powierzchnia dachu:

78,1 m2

Kąt nachylenia dachu:

45

Wypust dachu:

100 cm

Grubość deski dachowej:

19 mm

Grubosć deski podłogowej:

28 mm

Wymiar belki podwalinowej:

45x95 mm

Ilość drzwi:

1x 1400x2090 mm, 1x 900x2050 mm, 4x 800x2050 mm

Ilość okien uch. rozw.:

2x 750x1080 mm

Ilość podw. okien uch. rozw.:

4x 1200x1080 mm

1 / 2

120900

(Cena brutto)
U nas kupisz na raty, wyślij formularz z adnotacją „na raty”, a nasz specjalista skontaktuje się z Tobą

Imię

E-mail

Telefon

Wiadomość

    























Domek letniskowy z poddaszem Tatry (35 m²) – Przestrzeń i solidność

Dom Tatry to dopracowany technologicznie domek z poddaszem użytkowym, zaprojektowany z myślą o maksymalnej funkcjonalności na działce rekreacyjnej. Dzięki powierzchni zabudowy równej 35 m², jego budowa nie wymaga pozwolenia – wystarczy zwykłe zgłoszenie.

Konstrukcja opiera się na grubych, 60-milimetrowych balach ze świerku litego, łączonych precyzyjną metodą pióro-wpust. Każdy element jest obrabiany cyfrowo, co gwarantuje idealne spasowanie i stabilność na lata. Po zastosowaniu opcjonalnego ocieplenia, budynek z powodzeniem pełni funkcję domu całorocznego.

Układ pomieszczeń (6 stref użytkowych)

Wnętrze zostało podzielone tak, aby zapewnić komfort całej rodzinie. Duże, podwójnie przeszklone okna (technologia zespolona) gwarantują doskonałe doświetlenie.

  • Parter (strefa dzienna): Wiatrołap (3,36 m²), przestronny pokój dzienny z aneksem kuchennym (19,81 m²) oraz wydzielona łazienka (6,59 m²). Z salonu prowadzą dwuskrzydłowe drzwi z opcją wyjścia na taras.
  • Poddasze (strefa nocna): Dwie niezależne sypialnie (9,7 m² i 9,09 m²) oraz praktyczny pokój przechodni (7,64 m²).

Opcje dodatkowe i personalizacja

Domek sprzedawany jest w wersji do samodzielnego montażu z pełną instrukcją, jednak oferujemy szeroki pakiet usług dodatkowych. Możesz zlecić nam m.in.: pokrycie dachu blachodachówką, malowanie, montaż rynien, okiennic oraz transport.

Kompleksowa realizacja – od fundamentu po klucze

Wymiar z el. wystającymi:

600x620 cm

Wymiar bez el. wystających:

580x600 cm

Grubość ściany:

60 mm

Wysokość ściany:

245 cm

Wysokość w szczycie:

635 cm

Powierzchnia zabudowy:

35 + 26,5 m2

Powierzchnia dachu:

78,1 m2

Kąt nachylenia dachu:

45

Wypust dachu:

100 cm

Grubość deski dachowej:

19 mm

Grubosć deski podłogowej:

28 mm

Wymiar belki podwalinowej:

45x95 mm

Ilość drzwi:

1x 1400x2090 mm, 1x 900x2050 mm, 4x 800x2050 mm

Ilość okien uch. rozw.:

2x 750x1080 mm

Ilość podw. okien uch. rozw.:

4x 1200x1080 mm

1 / 2
120900 (Cena brutto)
U nas kupisz na raty, wyślij formularz z adnotacją „na raty”, a nasz specjalista skontaktuje się z Tobą

Imię

E-mail

Telefon

Wiadomość

    

120900

Kup