+48 723 568 558 +48 797 864 298 Postępu 15, 05-500 Nowa Wola info@avahouse.pl























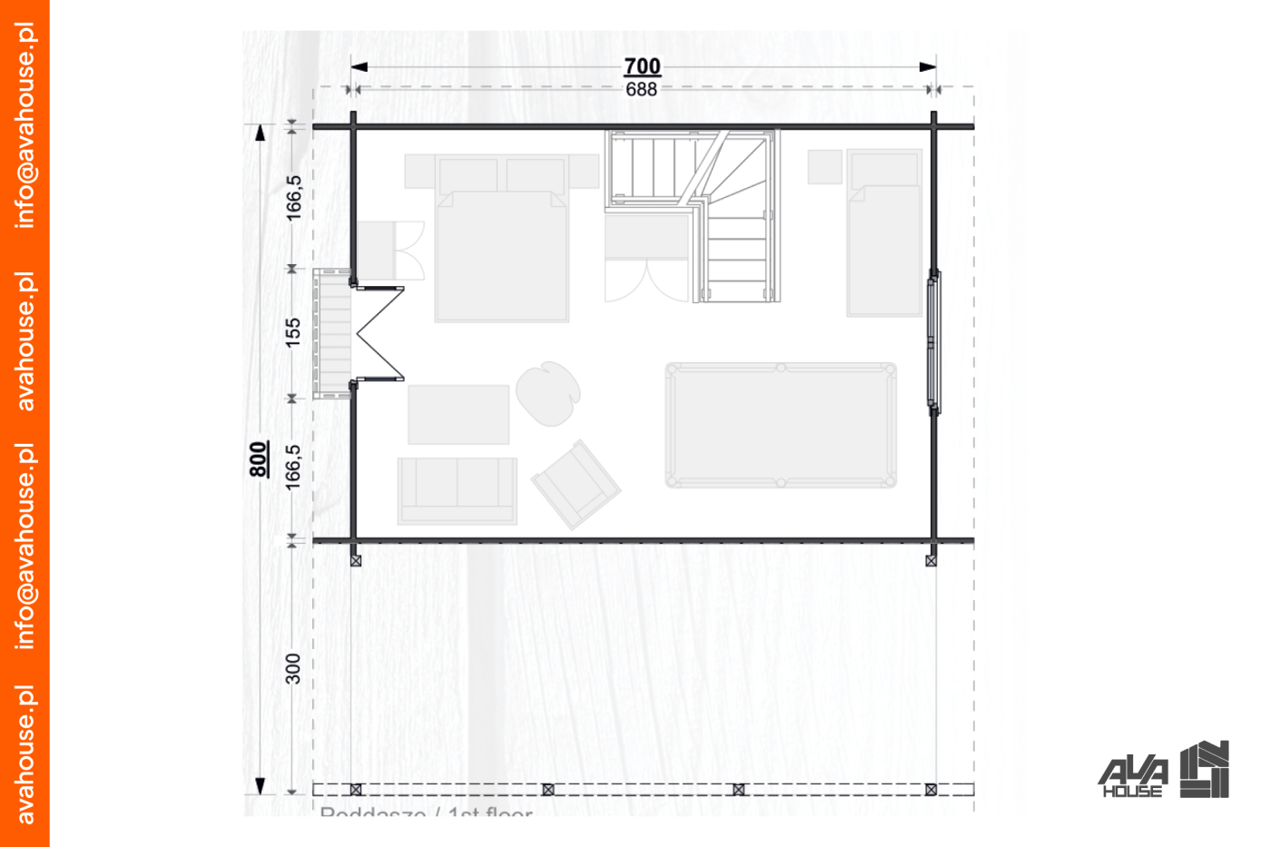
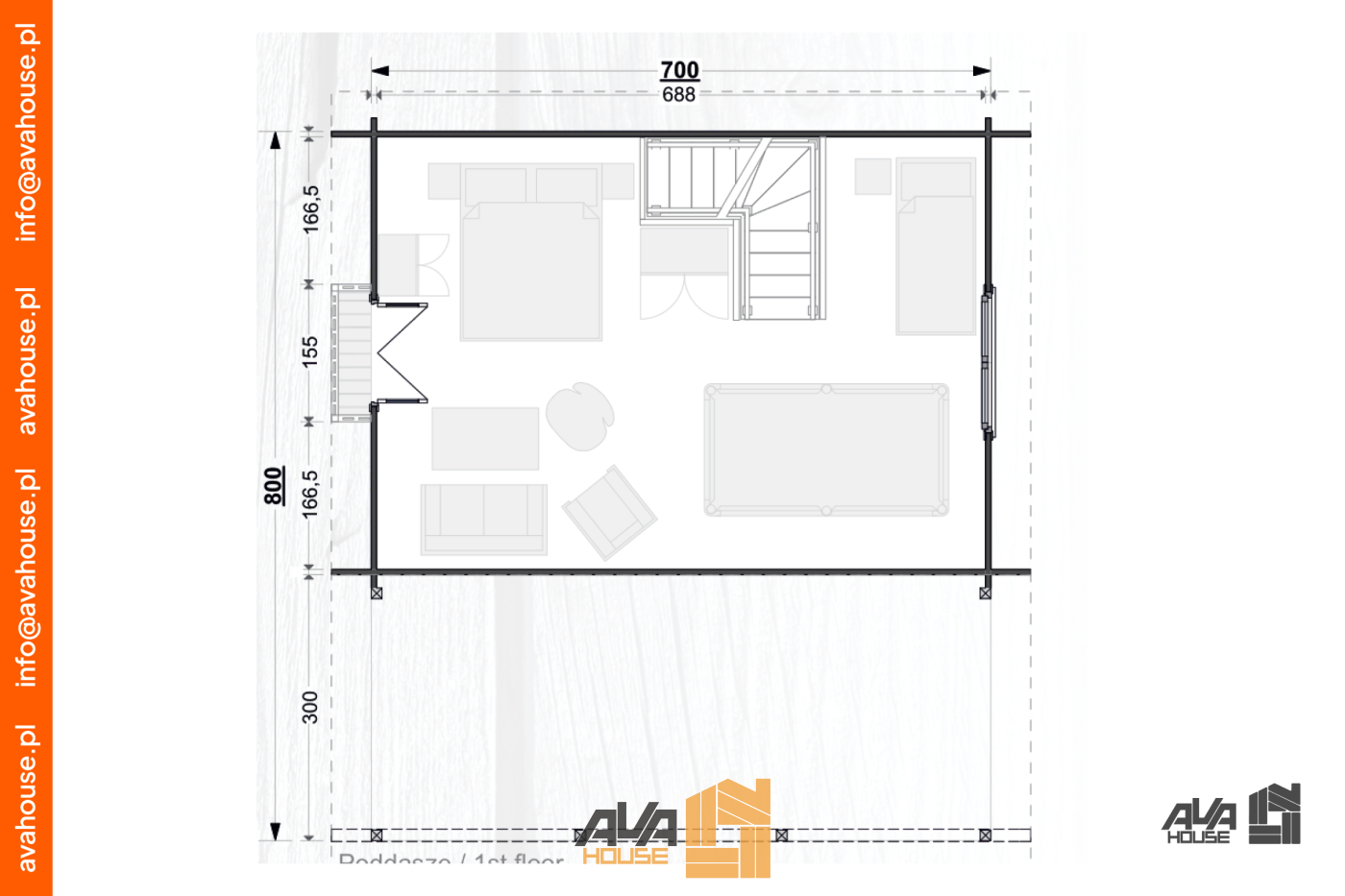
Domek letniskowy Atlas – Otwarta przestrzeń i świetlisty taras Atlas to wyjątkowy projekt w ofercie AVAHouse, stworzony dla osób, które nie lubią ciasnych pomieszczeń. Mimo imponujących wymiarów całkowitych, powierzchnia zabudowy samej części mieszkalnej wynosi równe 35 m² (7x5 m). Oznacza to, że ten przestronny domek z poddaszem wybudujesz na zwykłe zgłoszenie, bez pozwolenia na budowę. Cała konstrukcja opiera się na solidnych balach (58 mm) z niezwykle trwałego świerku skandynawskiego. Taras, który robi różnicę Tym, co najbardziej wyróżnia model Atlas, jest potężny taras o powierzchni 21 m². Jego zadaszenie wykonano z płyt poliwęglanu komorowego (16 mm). Dzięki temu rozwiązaniu taras jest w pełni chroniony przed deszczem, a jednocześnie pozostaje niesamowicie jasny. Światło słoneczne swobodnie wpada przez przezroczysty dach, a stamtąd – przez duże, przeszklone drzwi – wprost do wnętrza salonu. Koncepcja otwartego wnętrza Zamiast dzielić dom na wiele małych pokoików, postawiliśmy na rozmach. Parter to imponujący salon połączony z aneksem kuchennym o łącznej powierzchni 30 m², uzupełniony o praktyczną łazienkę (2,7 m²). Poddasze użytkowe to z kolei jeden ogromny pokój (30 m²), który możesz zaaranżować według własnych potrzeb – jako wielką sypialnię, pracownię lub pokój rekreacyjny. Z poddasza prowadzi wyjście na urokliwy, drewniany balkon. Zbuduj swój azyl z AVAHouse

Wymiar z el. wystającymi:

700x800 cm

Wymiar bez el. wystających:

680x780 cm

Grubość ściany:

58 mm

Wysokość ściany:

232 cm

Wysokość w szczycie:

625 cm

Powierzchnia zabudowy:

62 + 21 m2

Powierzchnia dachu:

103 m2

Kąt nachylenia dachu:

45

Wypust dachu:

120 cm

Grubość deski dachowej:

19 mm

Grubosć deski podłogowej:

28 mm

Wymiar belki podwalinowej:

45x95 mm

Ilość drzwi:

2x 1200x2090 mm, 1x 1200x2090 mm, 1x 800x2050 mm

Ilość okien nieotwieralnych:

1x 900x1080 mm (ISO)

Ilość okien rozwieranych:

1x 550x550 mm (ISO)

Ilość podw. okien uch. rozw.:

1x 1600x1080 mm (ISO), 1x 140ox1080 mm (ISO)

1 / 2

120800

(Cena brutto)
U nas kupisz na raty, wyślij formularz z adnotacją „na raty”, a nasz specjalista skontaktuje się z Tobą

Imię

E-mail

Telefon

Wiadomość

    























Domek letniskowy Atlas – Otwarta przestrzeń i świetlisty taras Atlas to wyjątkowy projekt w ofercie AVAHouse, stworzony dla osób, które nie lubią ciasnych pomieszczeń. Mimo imponujących wymiarów całkowitych, powierzchnia zabudowy samej części mieszkalnej wynosi równe 35 m² (7x5 m). Oznacza to, że ten przestronny domek z poddaszem wybudujesz na zwykłe zgłoszenie, bez pozwolenia na budowę. Cała konstrukcja opiera się na solidnych balach (58 mm) z niezwykle trwałego świerku skandynawskiego. Taras, który robi różnicę Tym, co najbardziej wyróżnia model Atlas, jest potężny taras o powierzchni 21 m². Jego zadaszenie wykonano z płyt poliwęglanu komorowego (16 mm). Dzięki temu rozwiązaniu taras jest w pełni chroniony przed deszczem, a jednocześnie pozostaje niesamowicie jasny. Światło słoneczne swobodnie wpada przez przezroczysty dach, a stamtąd – przez duże, przeszklone drzwi – wprost do wnętrza salonu. Koncepcja otwartego wnętrza Zamiast dzielić dom na wiele małych pokoików, postawiliśmy na rozmach. Parter to imponujący salon połączony z aneksem kuchennym o łącznej powierzchni 30 m², uzupełniony o praktyczną łazienkę (2,7 m²). Poddasze użytkowe to z kolei jeden ogromny pokój (30 m²), który możesz zaaranżować według własnych potrzeb – jako wielką sypialnię, pracownię lub pokój rekreacyjny. Z poddasza prowadzi wyjście na urokliwy, drewniany balkon. Zbuduj swój azyl z AVAHouse

Wymiar z el. wystającymi:

700x800 cm

Wymiar bez el. wystających:

680x780 cm

Grubość ściany:

58 mm

Wysokość ściany:

232 cm

Wysokość w szczycie:

625 cm

Powierzchnia zabudowy:

62 + 21 m2

Powierzchnia dachu:

103 m2

Kąt nachylenia dachu:

45

Wypust dachu:

120 cm

Grubość deski dachowej:

19 mm

Grubosć deski podłogowej:

28 mm

Wymiar belki podwalinowej:

45x95 mm

Ilość drzwi:

2x 1200x2090 mm, 1x 1200x2090 mm, 1x 800x2050 mm

Ilość okien nieotwieralnych:

1x 900x1080 mm (ISO)

Ilość okien rozwieranych:

1x 550x550 mm (ISO)

Ilość podw. okien uch. rozw.:

1x 1600x1080 mm (ISO), 1x 140ox1080 mm (ISO)

1 / 2
120800 (Cena brutto)
U nas kupisz na raty, wyślij formularz z adnotacją „na raty”, a nasz specjalista skontaktuje się z Tobą

Imię

E-mail

Telefon

Wiadomość

    

120800

Kup