Dom Bernina
Dom Bernina — drewniany domek letniskowy z poddaszem (bez pozwolenia)
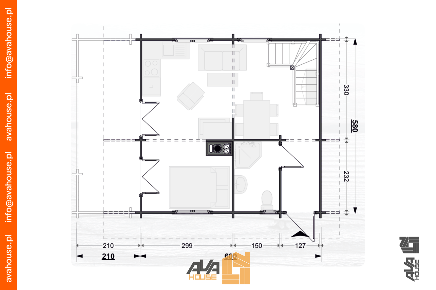
Dom Bernina to drewniany domek letniskowy z poddaszem użytkowym, który można wybudować bez pozwolenia na budowę. To idealny wybór dla rodziny lub większej grupy znajomych: 10 pomieszczeń, w tym 4 sypialnie, 2 łazienki, garderoba oraz salon z kuchnią zapewniają wygodę i prywatność.
Dom Bernina ma dwuspadowy, symetryczny dach (19 mm, 45°, 79,5 m²) i wysokość do 670 cm. Ściany mają 58 mm, wysokość parteru 232 cm, a poddasza w najwyższym punkcie 309 cm. Konstrukcję oddziela od podłoża deska 28 mm oraz belki podwalinowe 45×95 mm, a elementy są precyzyjnie dopasowane dzięki cyfrowej obróbce.
Wymiary zewnętrzne (bez tarasu i wypustów): 830×600 cm (bez wypustów: 820×580 cm). Taras ma 210×580 cm, a balkon 120×580 cm. Od frontu znajdują się pełne drzwi i dwa okna, z boku tarasu — dwoje przeszklonych drzwi, a balkon dostępny jest z dwóch pomieszczeń. Układ: parter (wiatrołap, łazienka, salon z aneksem, sypialnia) oraz poddasze (3 sypialnie, łazienka, garderoba, korytarz). Powierzchnie: parter ok. 35 m², poddasze 26,4 m², taras 12 m², balkon 6 m². Opcjonalnie możliwy montaż przez profesjonalną ekipę.
Wymiar z el. wystającymi
830x600 cm
Wymiar bez el. wystających:
810x580 cm
Grubość ściany:
58 mm
Wysokość ściany:
232 cm
Wysokość w szczycie:
670 cm
Powierzchnia zabudowy:
35 + 12,18 m2 (parter), 26,4 + 6,9 m2 (poddasze)
Powierzchnia dachu:
79,5 m2
Wymiar belki podwalinowej:
45x95 mm
Ilość drzwi:
2x 1200x2090 mm, 7x 800x2050 mm, 1x 600x2050 mm, 1x 900x2090 mm
Ilość okien rozwieranych:
1x 550x550 mm
Ilość okien uch. rozw.:
1x 980x1080 mm, 1x 900x1080 mm
Ilość podw. okien uch. rozw.:
2x 1200x1080 mm
Wypust dachu:
120 cm
Kąt nachylenia dachu:
45
120900
Zł (Cena brutto)
Dom Bernina — drewniany domek letniskowy z poddaszem (bez pozwolenia)
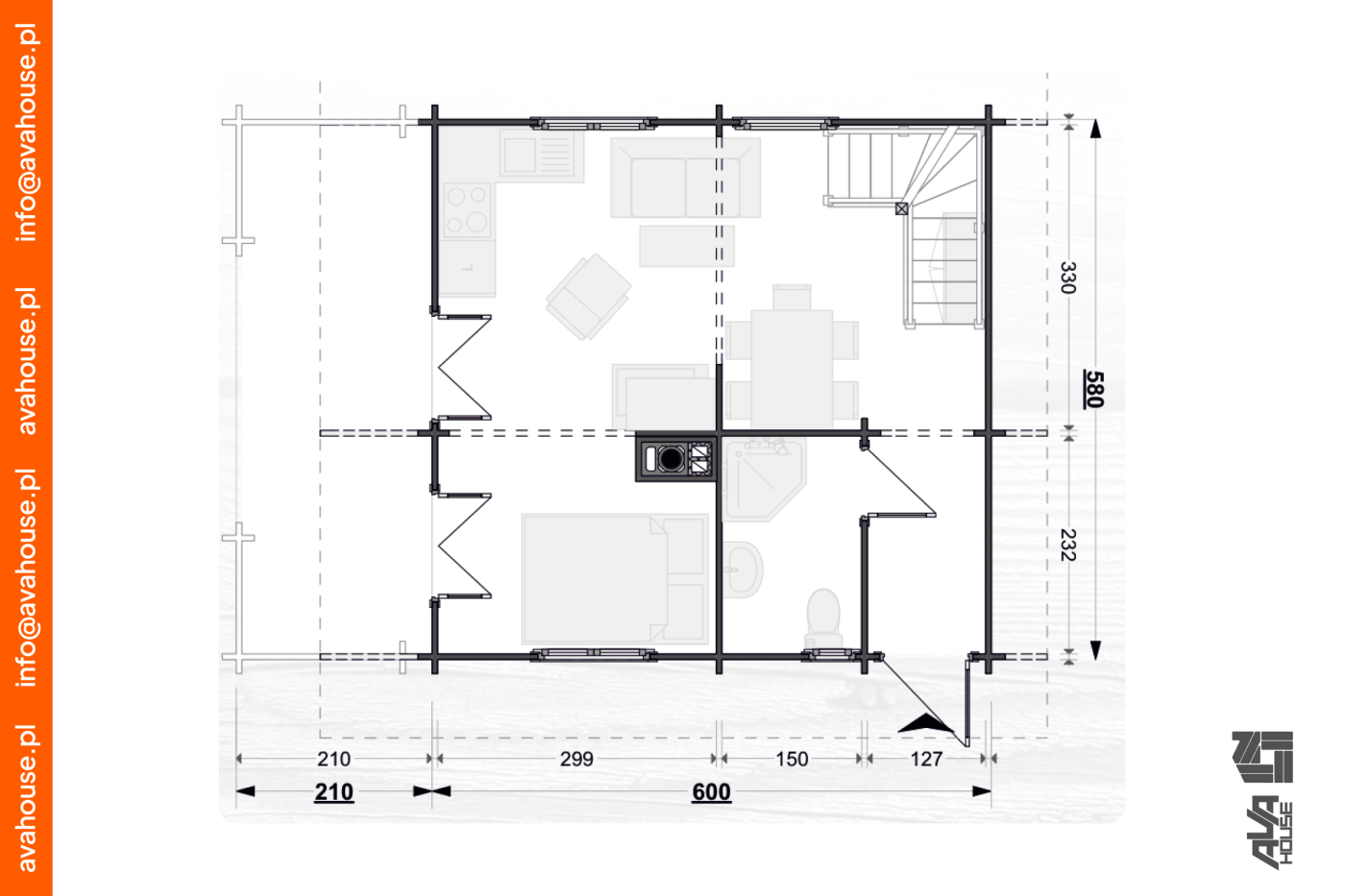
Dom Bernina to drewniany domek letniskowy z poddaszem użytkowym, który można wybudować bez pozwolenia na budowę. To idealny wybór dla rodziny lub większej grupy znajomych: 10 pomieszczeń, w tym 4 sypialnie, 2 łazienki, garderoba oraz salon z kuchnią zapewniają wygodę i prywatność.
Dom Bernina ma dwuspadowy, symetryczny dach (19 mm, 45°, 79,5 m²) i wysokość do 670 cm. Ściany mają 58 mm, wysokość parteru 232 cm, a poddasza w najwyższym punkcie 309 cm. Konstrukcję oddziela od podłoża deska 28 mm oraz belki podwalinowe 45×95 mm, a elementy są precyzyjnie dopasowane dzięki cyfrowej obróbce.
Wymiary zewnętrzne (bez tarasu i wypustów): 830×600 cm (bez wypustów: 820×580 cm). Taras ma 210×580 cm, a balkon 120×580 cm. Od frontu znajdują się pełne drzwi i dwa okna, z boku tarasu — dwoje przeszklonych drzwi, a balkon dostępny jest z dwóch pomieszczeń. Układ: parter (wiatrołap, łazienka, salon z aneksem, sypialnia) oraz poddasze (3 sypialnie, łazienka, garderoba, korytarz). Powierzchnie: parter ok. 35 m², poddasze 26,4 m², taras 12 m², balkon 6 m². Opcjonalnie możliwy montaż przez profesjonalną ekipę.
Wymiar z el. wystającymi
830x600 cm
Wymiar bez el. wystających:
810x580 cm
Grubość ściany:
58 mm
Wysokość ściany:
232 cm
Wysokość w szczycie:
670 cm
Powierzchnia zabudowy:
35 + 12,18 m2 (parter), 26,4 + 6,9 m2 (poddasze)
Powierzchnia dachu:
79,5 m2
Wymiar belki podwalinowej:
45x95 mm
Ilość drzwi:
2x 1200x2090 mm, 7x 800x2050 mm, 1x 600x2050 mm, 1x 900x2090 mm
Ilość okien rozwieranych:
1x 550x550 mm
Ilość okien uch. rozw.:
1x 980x1080 mm, 1x 900x1080 mm
Ilość podw. okien uch. rozw.:
2x 1200x1080 mm
Wypust dachu:
120 cm
Kąt nachylenia dachu:
45
120900
Zł
