+48 723 568 558 +48 797 864 298 Postępu 15, 05-500 Nowa Wola info@avahouse.pl























Domek Letniskowy LEONARDO - Twoje Urokliwe Miejsce na Wypoczynek! 

Domek letniskowy LEONARDO to doskonałe połączenie stylu i funkcjonalności. Idealny dla tych, którzy pragną spędzić czas na świeżym powietrzu, ciesząc się komfortem i estetyką naturalnych materiałów. Ten domek jest perfekcyjny na relaksujący urlop, weekendowe spotkania czy rodzinne wakacje.


Dane techniczne, które robią wrażenie:

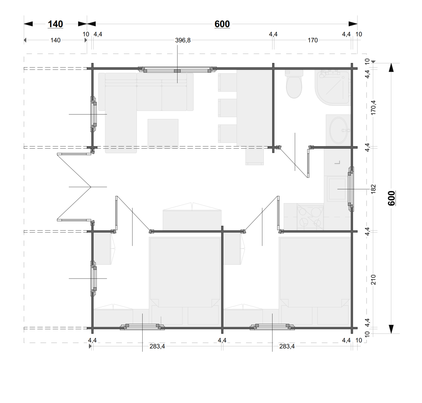
  • Wymiary z elementami wystającymi: 600 x 600 cm 
  • Wymiary bez elementów wystających: 580 x 580 cm 
  • Grubość ściany: 45 mm — zapewniająca znakomitą izolację termiczną. 
  • Wysokość ściany: 228 cm oraz wysokość w szczycie: 313 cm — przestronność, która dostarcza komfortu. 
  • Powierzchnia zabudowy: 32,28 m² — wystarczająco dużo miejsca na relaks. 
  • Powierzchnia dachu: 42 m² z kątem nachylenia 13,73° oraz 22,55° — estetyczny kształt. 
  • Wypust dachu: 140 cm — efektywna ochrona przed deszczem i słońcem. 
  • Grubość deski dachowej: 19 mm oraz grubość deski podłogowej: 28 mm — klasyczne materiały, które zapewniają trwałość. 
  • Wymiar belki podwalinowej: 45 x 90 mm dla stabilnej konstrukcji.

Funkcjonalne i estetyczne drzwi oraz okna:

  • Ilość drzwi: 1 x 1590 x 2000 mm, 2 x 830 x 2000 mm, 1 x 710 x 2000 mm, co zapewnia wygodny dostęp do wnętrza. 
  • Ilość okien nieotwieralnych: 2 x 630 x 1800 mm — dla lepszej wentylacji i naturalnego światła. 
  • Ilość podwójnych okien uchylnych rozwieranych: 1 x 1560 x 1050 mm oraz 3 x 800 x 1050 mm — dadzą więcej przestrzeni i komfortu w domek.

Domek LEONARDO w stanie surowym zamkniętym zawiera:

  • Ściany z balika 45 mm,
  • Drewniane drzwi zewnętrzne (oszklone),
  • Drewniane drzwi wewnętrzne,
  • Drewniane okna z podwójną szybą,
  • Drewniane ścianki działowe,
  • Drewniana podłoga oraz dach.

Transport i dodatkowe usługi:

  • Transport: Koszt uzależniony od miejsca dostawy, liczony od Nowej Woli 05-500.
  • Wprowadzenie elektryki i hydrauliki do domku jest w cenie montażu.
  • Termin montażu ustalany indywidualnie z klientem.
  • Czas trwania montażu z ociepleniem i z wylaniem płyty fundamentowej wynosi od 5 do 10 dni.

Zainwestuj w domek letniskowy LEONARDO od Avahouse i twórz niezapomniane wspomnienia, relaksując się w bliskim kontakcie z naturą! 

Wymiar z el. wystającymi:

600 x 600 cm

Wymiar bez el. wystających:

580 x 580 cm

Grubość ściany:

45 mm

Wysokość ściany:

228 cm

Wysokość w szczycie:

313 cm

Powierzchnia zabudowy:

32,28 m2

Powierzchnia dachu:

42 m2

Kąt nachylenia dachu:

13,73o, 22,55o

Wypust dachu:

140 cm

Grubość deski dachowej:

19 mm

Grubosć deski podłogowej:

28 mm

Wymiar belki podwalinowej:

45 x 90 mm

Ilość drzwi:

1x 1590x2000 mm, 2x 830x2000 mm, 1x 710x2000 mm

Ilość okien nieotwieralnych:

2x 630x1800 mm

Ilość podw. okien uch. rozw.:

1x 1560x1050 mm, 3x 800x1050 mm

38500

(Cena brutto)
U nas kupisz na raty, wyślij formularz z adnotacją „na raty”, a nasz specjalista skontaktuje się z Tobą

Imię

E-mail

Telefon

Wiadomość

    























Domek Letniskowy LEONARDO - Twoje Urokliwe Miejsce na Wypoczynek! 

Domek letniskowy LEONARDO to doskonałe połączenie stylu i funkcjonalności. Idealny dla tych, którzy pragną spędzić czas na świeżym powietrzu, ciesząc się komfortem i estetyką naturalnych materiałów. Ten domek jest perfekcyjny na relaksujący urlop, weekendowe spotkania czy rodzinne wakacje.


Dane techniczne, które robią wrażenie:

  • Wymiary z elementami wystającymi: 600 x 600 cm 
  • Wymiary bez elementów wystających: 580 x 580 cm 
  • Grubość ściany: 45 mm — zapewniająca znakomitą izolację termiczną. 
  • Wysokość ściany: 228 cm oraz wysokość w szczycie: 313 cm — przestronność, która dostarcza komfortu. 
  • Powierzchnia zabudowy: 32,28 m² — wystarczająco dużo miejsca na relaks. 
  • Powierzchnia dachu: 42 m² z kątem nachylenia 13,73° oraz 22,55° — estetyczny kształt. 
  • Wypust dachu: 140 cm — efektywna ochrona przed deszczem i słońcem. 
  • Grubość deski dachowej: 19 mm oraz grubość deski podłogowej: 28 mm — klasyczne materiały, które zapewniają trwałość. 
  • Wymiar belki podwalinowej: 45 x 90 mm dla stabilnej konstrukcji.

Funkcjonalne i estetyczne drzwi oraz okna:

  • Ilość drzwi: 1 x 1590 x 2000 mm, 2 x 830 x 2000 mm, 1 x 710 x 2000 mm, co zapewnia wygodny dostęp do wnętrza. 
  • Ilość okien nieotwieralnych: 2 x 630 x 1800 mm — dla lepszej wentylacji i naturalnego światła. 
  • Ilość podwójnych okien uchylnych rozwieranych: 1 x 1560 x 1050 mm oraz 3 x 800 x 1050 mm — dadzą więcej przestrzeni i komfortu w domek.

Domek LEONARDO w stanie surowym zamkniętym zawiera:

  • Ściany z balika 45 mm,
  • Drewniane drzwi zewnętrzne (oszklone),
  • Drewniane drzwi wewnętrzne,
  • Drewniane okna z podwójną szybą,
  • Drewniane ścianki działowe,
  • Drewniana podłoga oraz dach.

Transport i dodatkowe usługi:

  • Transport: Koszt uzależniony od miejsca dostawy, liczony od Nowej Woli 05-500.
  • Wprowadzenie elektryki i hydrauliki do domku jest w cenie montażu.
  • Termin montażu ustalany indywidualnie z klientem.
  • Czas trwania montażu z ociepleniem i z wylaniem płyty fundamentowej wynosi od 5 do 10 dni.

Zainwestuj w domek letniskowy LEONARDO od Avahouse i twórz niezapomniane wspomnienia, relaksując się w bliskim kontakcie z naturą! 

Wymiar z el. wystającymi:

600 x 600 cm

Wymiar bez el. wystających:

580 x 580 cm

Grubość ściany:

45 mm

Wysokość ściany:

228 cm

Wysokość w szczycie:

313 cm

Powierzchnia zabudowy:

32,28 m2

Powierzchnia dachu:

42 m2

Kąt nachylenia dachu:

13,73o, 22,55o

Wypust dachu:

140 cm

Grubość deski dachowej:

19 mm

Grubosć deski podłogowej:

28 mm

Wymiar belki podwalinowej:

45 x 90 mm

Ilość drzwi:

1x 1590x2000 mm, 2x 830x2000 mm, 1x 710x2000 mm

Ilość okien nieotwieralnych:

2x 630x1800 mm

Ilość podw. okien uch. rozw.:

1x 1560x1050 mm, 3x 800x1050 mm

38500 (Cena brutto)
U nas kupisz na raty, wyślij formularz z adnotacją „na raty”, a nasz specjalista skontaktuje się z Tobą

Imię

E-mail

Telefon

Wiadomość

    

38500

Kup