Domek Letniskowy z antresolą Aurora 6,6x4,7
Domek letniskowy Aurora 6,6×4,7 m to propozycja dla osób, które marzą o własnym miejscu na działce, gdzie można odpocząć od codziennego zgiełku. Konstrukcja wykonana jest z naturalnego świerku o grubości 44 mm, co gwarantuje trwałość i doskonałą izolację.
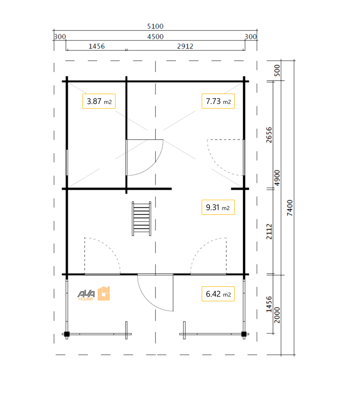
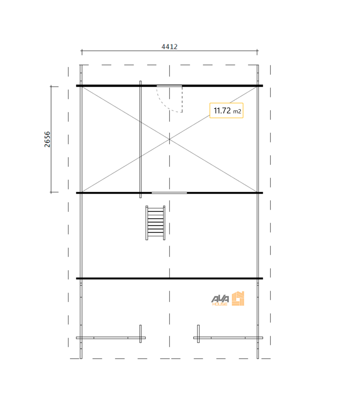
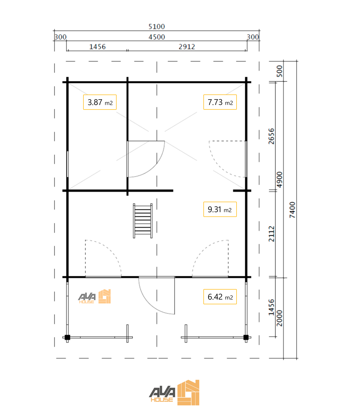
Dom ma powierzchnię użytkową 20,9 m² oraz praktyczny taras o powierzchni 6,4 m², idealny na poranną kawę lub letnie wieczory. Wnętrze podzielone zostało na trzy pomieszczenia, a dodatkowym atutem jest antresola, która zwiększa możliwości aranżacyjne – można tu urządzić sypialnię, kącik relaksu lub dodatkowe miejsce do przechowywania.
Dzięki dużym oknom wnętrze jest jasne i przyjazne, a wysokość w szczycie (3,9 m) zapewnia poczucie przestrzeni. Dach o powierzchni 43,3 m² i kącie nachylenia 31° pozwala na estetyczne wykończenie gontem lub blachodachówką.
Aurora to nowoczesny domek letniskowy, który sprawdzi się zarówno jako letnia baza wypoczynkowa, jak i całoroczny dom po odpowiedniej adaptacji (ocieplenie, instalacje).
Wymiary zewnętrzny (m)
6,6x4,7
Wymiary tarasu, m
4,41х1,444
Ściana, grubość (mm)
44
Deski dachowe (mm)
20,00
Wypust dachu (m)
0,3
Powierzchnia tarasu (m2)
6,4
Wysokość w szczycie, m
3,9
Legary (podwaliny), mm
tak/impregnowane/44x65
Powierzchnia fundamentu (m2)
27,8
1хDrzwi zewnętrzne wymiar (cm)
90х198
3xOkna wymiar (cm)
90x103
Rozmiar pokoju 1, m / Powieszchnia, m2
2,112x4,412/9,31
Rozmiar pokoju 3, m / Powieszchnia, m2
2,912х2,656/7,73
Wymiary wewnętrzny (m)
6,3x4,41
Materiał budowlany
naturalny Świerk
Powierzchnia domku (m2)
21
Powierzchnia dachu (m2)
43,3
Szerokość tarasu (m)
1,44
Ściany boczne, wysokość (m)
2,5
Kąt nachylenia dachu
31
Podłoga (mm)
tak/28
Płyta OSB, szt
9,27
1хDrzwi wewnętrzny wymiar (cm)
90х191
2xOkna wymiar (cm)
65x64
Rozmiar pokoju 2, m / Powieszchnia, m2
2,656х1,456/3,87
36200
Zł (Cena brutto)
Domek letniskowy Aurora 6,6×4,7 m to propozycja dla osób, które marzą o własnym miejscu na działce, gdzie można odpocząć od codziennego zgiełku. Konstrukcja wykonana jest z naturalnego świerku o grubości 44 mm, co gwarantuje trwałość i doskonałą izolację.
Dom ma powierzchnię użytkową 20,9 m² oraz praktyczny taras o powierzchni 6,4 m², idealny na poranną kawę lub letnie wieczory. Wnętrze podzielone zostało na trzy pomieszczenia, a dodatkowym atutem jest antresola, która zwiększa możliwości aranżacyjne – można tu urządzić sypialnię, kącik relaksu lub dodatkowe miejsce do przechowywania.
Dzięki dużym oknom wnętrze jest jasne i przyjazne, a wysokość w szczycie (3,9 m) zapewnia poczucie przestrzeni. Dach o powierzchni 43,3 m² i kącie nachylenia 31° pozwala na estetyczne wykończenie gontem lub blachodachówką.
Aurora to nowoczesny domek letniskowy, który sprawdzi się zarówno jako letnia baza wypoczynkowa, jak i całoroczny dom po odpowiedniej adaptacji (ocieplenie, instalacje).
Wymiary zewnętrzny (m)
6,6x4,7
Wymiary tarasu, m
4,41х1,444
Ściana, grubość (mm)
44
Deski dachowe (mm)
20,00
Wypust dachu (m)
0,3
Powierzchnia tarasu (m2)
6,4
Wysokość w szczycie, m
3,9
Legary (podwaliny), mm
tak/impregnowane/44x65
Powierzchnia fundamentu (m2)
27,8
1хDrzwi zewnętrzne wymiar (cm)
90х198
3xOkna wymiar (cm)
90x103
Rozmiar pokoju 1, m / Powieszchnia, m2
2,112x4,412/9,31
Rozmiar pokoju 3, m / Powieszchnia, m2
2,912х2,656/7,73
Wymiary wewnętrzny (m)
6,3x4,41
Materiał budowlany
naturalny Świerk
Powierzchnia domku (m2)
21
Powierzchnia dachu (m2)
43,3
Szerokość tarasu (m)
1,44
Ściany boczne, wysokość (m)
2,5
Kąt nachylenia dachu
31
Podłoga (mm)
tak/28
Płyta OSB, szt
9,27
1хDrzwi wewnętrzny wymiar (cm)
90х191
2xOkna wymiar (cm)
65x64
Rozmiar pokoju 2, m / Powieszchnia, m2
2,656х1,456/3,87
36200
Zł
