Domek letniskowy Robert II 5 x 7
Domek Letniskowy ROBERT II - Twój Azyl w Naturze!
Domek letniskowy ROBERT II to idealne połączenie komfortu i funkcjonalności, które sprawia, że jest doskonałym miejscem na relaks i wypoczynek. Ten projekt domku dostępny jest również w odbiciu lustrzanym, co pozwala dostosować go do Twoich indywidualnych potrzeb.
Dane techniczne, które zachwycają:
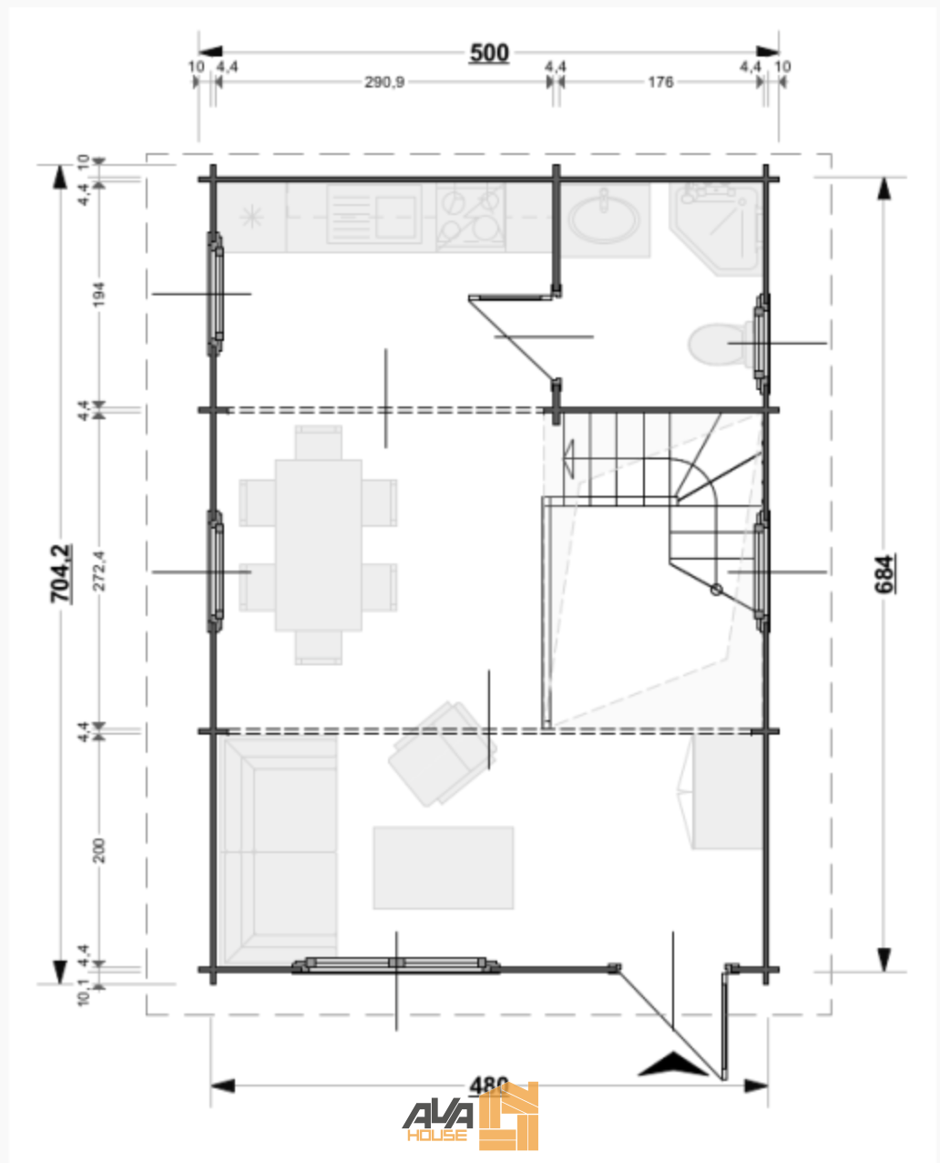
- Wymiary z elementami wystającymi: 500x704,4 cm
- Wymiary bez elementów wystających: 480x684 cm
- Grubość ściany: 44 mm — zapewniająca doskonałą izolację akustyczną i termiczną.
- Wysokość ściany: 220 cm oraz wysokość w szczycie: 482 cm — przestronność, w której poczujesz się komfortowo.
- Powierzchnia zabudowy: 65 m² — wystarczająco dużo miejsca na urządzenie przytulnego wnętrza.
- Powierzchnia dachu: 51 m² z kątem nachylenia 30° — stylowy i funkcjonalny kształt.
- Wypust dachu: 40 cm — zapewniający ochronę przed deszczem.
- Grubość deski dachowej: 19 mm oraz grubość deski podłogowej: 28 mm — trwałość, która posłuży przez lata.
- Wymiar belki podwalinowej: 45 x 95 mm dla stabilnej konstrukcji.
Funkcjonalne rozwiązania:
- Domek ROBERT II dysponuje jednymi dużymi drzwiami (900x2050 mm) oraz trzema mniejszymi (700x2000 mm), co zapewnia wygodny dostęp.
- Ilość okien uchylnych rozwieranych: 5x (850x1050 mm) oraz 1x (550x550 mm) — maksymalne doświetlenie i wentylacja.
- Podwójne okno rozwierane: 1x (1550x1050 mm), które dodaje uroku i sprawia, że wnętrze staje się przytulne.
Wysoka jakość wykonania, domek ROBERT II w stanie surowym zamkniętym zawiera:
- Ściany z balika 45 mm,
- Drewniane drzwi zewnętrzne (oszklone lub pełne),
- Drewniane okna z podwójną szybą zapewniające doskonałą izolację,
- Drewnianą podłogę oraz solidny drewniany dach.
Dodatkowe opcje i usługi:
- Transport: Cena uzależniona od miejsca dostawy, liczona od Nowa Wola 05-500.
- Wprowadzenie elektryki i hydrauliki do domku w cenie montażu.
- Termin montażu ustalany indywidualnie z klientem, z przewidywanym czasem trwania montażu od 5 do 7 dni.
Twórz swoje wymarzone miejsce na wypoczynek z domkiem ROBERT II od Avahouse i ciesz się każdą chwilą spędzoną w otoczeniu natury!
Wymiar z el. wystającymi:
500x704,4 cm
Wymiar bez el. wystających:
471x675 cm
Grubość ściany:
44 mm
Wysokość ściany:
220 cm
Wysokość w szczycie:
482 cm
Powierzchnia zabudowy:
65 m2
Powierzchnia dachu:
51 m2
Kąt nachylenia dachu:
30o
Wypust dachu:
40 cm
Grubość deski dachowej:
19 mm
Grubosć deski podłogowej:
28 mm
Wymiar belki podwalinowej:
45x95 mm
Ilość drzwi:
1x 900x2050 mm, 3x 700x2000 mm
Ilość okien uch. rozw.:
5x 850x1050 mm, 1x 550x550 mm
Ilość podw. okien uch. rozw.:
1 x 1550 x 1050 mm
58000
Zł (Cena brutto)
Domek Letniskowy ROBERT II - Twój Azyl w Naturze!
Domek letniskowy ROBERT II to idealne połączenie komfortu i funkcjonalności, które sprawia, że jest doskonałym miejscem na relaks i wypoczynek. Ten projekt domku dostępny jest również w odbiciu lustrzanym, co pozwala dostosować go do Twoich indywidualnych potrzeb.
Dane techniczne, które zachwycają:
- Wymiary z elementami wystającymi: 500x704,4 cm
- Wymiary bez elementów wystających: 480x684 cm
- Grubość ściany: 44 mm — zapewniająca doskonałą izolację akustyczną i termiczną.
- Wysokość ściany: 220 cm oraz wysokość w szczycie: 482 cm — przestronność, w której poczujesz się komfortowo.
- Powierzchnia zabudowy: 65 m² — wystarczająco dużo miejsca na urządzenie przytulnego wnętrza.
- Powierzchnia dachu: 51 m² z kątem nachylenia 30° — stylowy i funkcjonalny kształt.
- Wypust dachu: 40 cm — zapewniający ochronę przed deszczem.
- Grubość deski dachowej: 19 mm oraz grubość deski podłogowej: 28 mm — trwałość, która posłuży przez lata.
- Wymiar belki podwalinowej: 45 x 95 mm dla stabilnej konstrukcji.
Funkcjonalne rozwiązania:
- Domek ROBERT II dysponuje jednymi dużymi drzwiami (900x2050 mm) oraz trzema mniejszymi (700x2000 mm), co zapewnia wygodny dostęp.
- Ilość okien uchylnych rozwieranych: 5x (850x1050 mm) oraz 1x (550x550 mm) — maksymalne doświetlenie i wentylacja.
- Podwójne okno rozwierane: 1x (1550x1050 mm), które dodaje uroku i sprawia, że wnętrze staje się przytulne.
Wysoka jakość wykonania, domek ROBERT II w stanie surowym zamkniętym zawiera:
- Ściany z balika 45 mm,
- Drewniane drzwi zewnętrzne (oszklone lub pełne),
- Drewniane okna z podwójną szybą zapewniające doskonałą izolację,
- Drewnianą podłogę oraz solidny drewniany dach.
Dodatkowe opcje i usługi:
- Transport: Cena uzależniona od miejsca dostawy, liczona od Nowa Wola 05-500.
- Wprowadzenie elektryki i hydrauliki do domku w cenie montażu.
- Termin montażu ustalany indywidualnie z klientem, z przewidywanym czasem trwania montażu od 5 do 7 dni.
Twórz swoje wymarzone miejsce na wypoczynek z domkiem ROBERT II od Avahouse i ciesz się każdą chwilą spędzoną w otoczeniu natury!
Wymiar z el. wystającymi:
500x704,4 cm
Wymiar bez el. wystających:
471x675 cm
Grubość ściany:
44 mm
Wysokość ściany:
220 cm
Wysokość w szczycie:
482 cm
Powierzchnia zabudowy:
65 m2
Powierzchnia dachu:
51 m2
Kąt nachylenia dachu:
30o
Wypust dachu:
40 cm
Grubość deski dachowej:
19 mm
Grubosć deski podłogowej:
28 mm
Wymiar belki podwalinowej:
45x95 mm
Ilość drzwi:
1x 900x2050 mm, 3x 700x2000 mm
Ilość okien uch. rozw.:
5x 850x1050 mm, 1x 550x550 mm
Ilość podw. okien uch. rozw.:
1 x 1550 x 1050 mm
58000
Zł
