Everest z antresolą
Dom drewniany Everest z antresolą – Przestrzeń, światło i nowoczesna stodoła
Everest z antresolą to odpowiedź na rosnącą popularność nowoczesnych domków w stylu stodoły. Prosta, elegancka bryła, duże przeszklenia i funkcjonalna antresola tworzą przestrzeń, która zachwyca zarówno wyglądem, jak i komfortem użytkowania. Co istotne, dzięki przemyślanym wymiarom, domek można postawić na zgłoszenie – bez konieczności uzyskiwania pozwolenia na budowę.
Wnętrze pełne światła i swobody
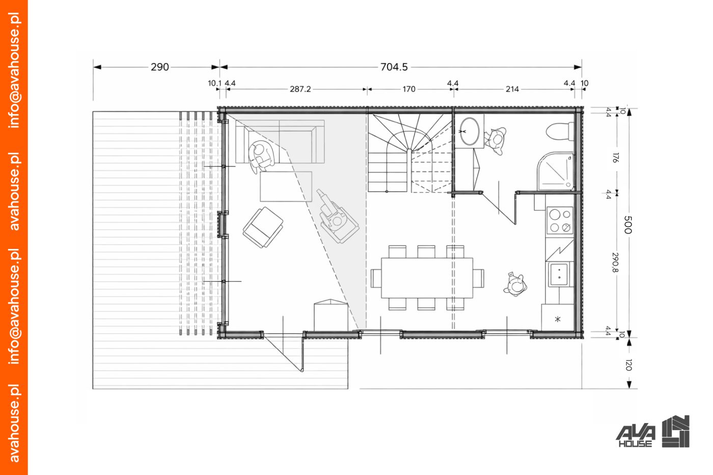
Już od pierwszego kroku Everest robi wrażenie przestronnością i naturalnym światłem. Do środka wchodzimy bezpośrednio z narożnego tarasu w kształcie litery L, który staje się naturalnym przedłużeniem strefy dziennej.Strefa dzienna:
Główne pomieszczenie zostało zaprojektowane jako otwarta przestrzeń, którą bez trudu zaaranżujesz na kuchnię, jadalnię i komfortowy salon. Duże przeszklenia oraz wysokie okna balkonowe sprawiają, że wnętrze jest jasne przez cały dzień, a granica między domem a ogrodem niemal znika.
Łazienka:
Wydzielone, zamknięte pomieszczenie zapewnia prywatność i funkcjonalność, idealnie sprawdzając się jako przytulna łazienka.
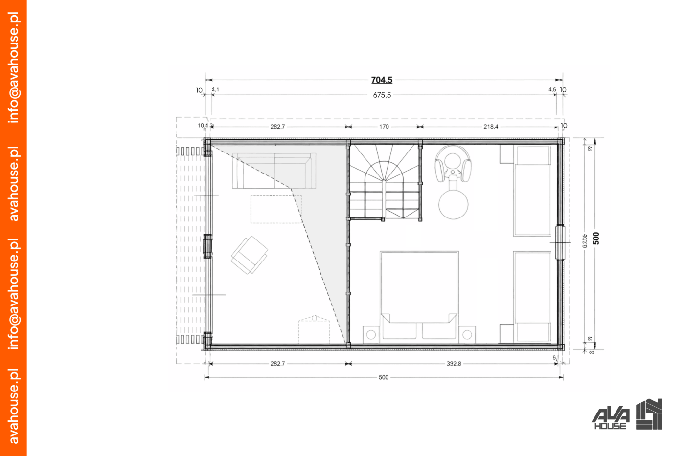
Antresola:
Schody umieszczone w rogu prowadzą na otwartą antresolę – idealne miejsce na sypialnię, przestrzeń relaksu lub dodatkową strefę nocną. To rozwiązanie maksymalnie wykorzystuje wysokość budynku i nadaje wnętrzu wyjątkowego charakteru.
Nowoczesny wygląd i trwała konstrukcja
Domek wykonany jest z litego bala świerkowego, co zapewnia trwałość i naturalny mikroklimat we wnętrzu. Po zastosowaniu zewnętrznego ocieplenia deską HARMONY VERTICAL bryła zyskuje nowoczesny, minimalistyczny wygląd, doskonale wpisujący się w aktualne trendy architektoniczne.Dwuspadowy dach o kącie nachylenia 30° podkreśla styl „nowoczesnej stodoły”, a jego konstrukcja gwarantuje solidność i estetykę na lata.
Idealny jako domek letniskowy lub całoroczny
Everest to świetna baza na wypoczynek, ale również doskonały punkt wyjścia do stworzenia domu całorocznego. Dzięki odpowiednim modyfikacjom – takim jak ocieplenie czy dodatkowe instalacje – z łatwością dopasujesz go do swoich potrzeb i stylu życia.
Wymiar z el. wystającymi:
500x704,5 cm
Wymiar bez el. wystających:
480x684,5 cm
Grubość ściany:
44 mm
Wysokość ściany:
250 cm
Wysokość w szczycie:
521 cm
Powierzchnia zabudowy:
55 + 21 m2
Powierzchnia dachu:
51 m2
Kąt nachylenia dachu:
30
Grubość deski dachowej:
19 mm
Grubosć deski podłogowej:
28 mm
Wymiar belki podwalinowej:
45x95 mm
Ilość drzwi:
1x 900x2050 mm, 1x 800x2050 mm
Ilość okien nieotwieralnych
2x 900x2050mm (ISO), 2x 1900x1900 mm
Ilość okien uch. rozw.:
1x 900x2050 mm (ISO)
Ilość podw. okien uch. rozw.:
88000 Zł
Dom drewniany Everest z antresolą – Przestrzeń, światło i nowoczesna stodoła
Everest z antresolą to odpowiedź na rosnącą popularność nowoczesnych domków w stylu stodoły. Prosta, elegancka bryła, duże przeszklenia i funkcjonalna antresola tworzą przestrzeń, która zachwyca zarówno wyglądem, jak i komfortem użytkowania. Co istotne, dzięki przemyślanym wymiarom, domek można postawić na zgłoszenie – bez konieczności uzyskiwania pozwolenia na budowę.
Wnętrze pełne światła i swobody
Już od pierwszego kroku Everest robi wrażenie przestronnością i naturalnym światłem. Do środka wchodzimy bezpośrednio z narożnego tarasu w kształcie litery L, który staje się naturalnym przedłużeniem strefy dziennej.Strefa dzienna:
Główne pomieszczenie zostało zaprojektowane jako otwarta przestrzeń, którą bez trudu zaaranżujesz na kuchnię, jadalnię i komfortowy salon. Duże przeszklenia oraz wysokie okna balkonowe sprawiają, że wnętrze jest jasne przez cały dzień, a granica między domem a ogrodem niemal znika.
Łazienka:
Wydzielone, zamknięte pomieszczenie zapewnia prywatność i funkcjonalność, idealnie sprawdzając się jako przytulna łazienka.
Antresola:
Schody umieszczone w rogu prowadzą na otwartą antresolę – idealne miejsce na sypialnię, przestrzeń relaksu lub dodatkową strefę nocną. To rozwiązanie maksymalnie wykorzystuje wysokość budynku i nadaje wnętrzu wyjątkowego charakteru.
Nowoczesny wygląd i trwała konstrukcja
Domek wykonany jest z litego bala świerkowego, co zapewnia trwałość i naturalny mikroklimat we wnętrzu. Po zastosowaniu zewnętrznego ocieplenia deską HARMONY VERTICAL bryła zyskuje nowoczesny, minimalistyczny wygląd, doskonale wpisujący się w aktualne trendy architektoniczne.Dwuspadowy dach o kącie nachylenia 30° podkreśla styl „nowoczesnej stodoły”, a jego konstrukcja gwarantuje solidność i estetykę na lata.
Idealny jako domek letniskowy lub całoroczny
Everest to świetna baza na wypoczynek, ale również doskonały punkt wyjścia do stworzenia domu całorocznego. Dzięki odpowiednim modyfikacjom – takim jak ocieplenie czy dodatkowe instalacje – z łatwością dopasujesz go do swoich potrzeb i stylu życia.
Wymiar z el. wystającymi:
500x704,5 cm
Wymiar bez el. wystających:
480x684,5 cm
Grubość ściany:
44 mm
Wysokość ściany:
250 cm
Wysokość w szczycie:
521 cm
Powierzchnia zabudowy:
55 + 21 m2
Powierzchnia dachu:
51 m2
Kąt nachylenia dachu:
30
Grubość deski dachowej:
19 mm
Grubosć deski podłogowej:
28 mm
Wymiar belki podwalinowej:
45x95 mm
Ilość drzwi:
1x 900x2050 mm, 1x 800x2050 mm
Ilość okien nieotwieralnych
2x 900x2050mm (ISO), 2x 1900x1900 mm
Ilość okien uch. rozw.:
1x 900x2050 mm (ISO)
Ilość podw. okien uch. rozw.:
88000Zł
88000 Zł
