Domek całoroczny Olivia R 6 x 6 | AVAHouse
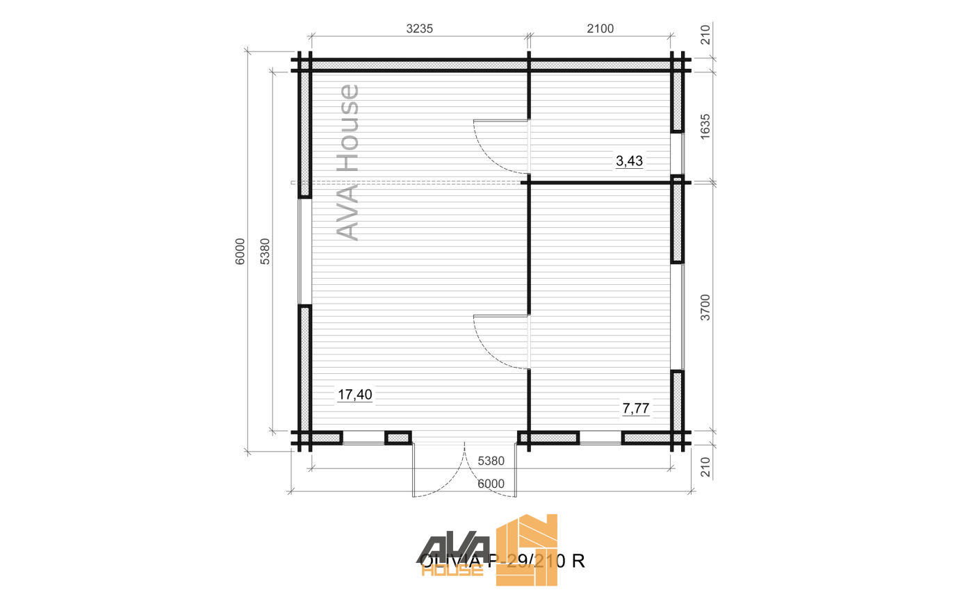
- Wymiary zewnętrzne: 5,9x5,9m
- Wymiary wewnętrzne: 5,28х5,28m
- Grubość ścian: 210mm
Dodatkowo oferujemy transport.
Całoroczne domki oferowane przez firmę Avahouse to synonim komfortu i ciepła przez wszystkie sezony. Nasze domki wyróżniają się zaawansowaną konstrukcją, obejmującą następujące elementy:

- Podwójne ściany, każda o grubości 45 mm: Gwarantują one solidną i wytrzymałą strukturę, która skutecznie chroni przed warunkami atmosferycznymi.
- Izolacja o grubości 120 mm: Zapewnia doskonałą efektywność termiczną, skutecznie utrzymując optymalne temperatury wewnątrz domku przez cały rok.
- Materiały izolacyjne: W naszych domkach zazwyczaj stosujemy celulozę lub wełnę mineralną, aby zapewnić najwyższą jakość izolacji i komfort użytkowania.
Wymiary zewnętrzne (m)
6 x 6
Powierzchnia użytkowa bez tarasu (m) /powierzchnia, m²
5,28x5,28/27,8
Grubość ściany (mm)
45+120+45
Deski dachowe (mm)
20
Ściany boczne, wysokość (m)
2,52
Kąt nachylenia dachu
16/22 stopni
Legary (podwaliny) (mm)
tak/impregnowane/45*120
Powierzchnia dachu (m²)
55
Wymiar pokoju 1, (m) / Powierzchnia, (m²)
3,135x5,28/16,55
Wymiar pokoju 2, (m) / Powierzchnia, (m²)
2,10x3,635/7,6
Wymiar pokoju 3, (m) / Powierzchnia, (m²)
2,10x1,60/3,4
Wymiary wewnętrzne (m)
5,28x5,28
Materiał budowlany
sosna i świerk naturalny
Powierzchnia domku (m²)
27,8
Wypust dachu (m)
0,5
Wysokość w szczycie (m)
3,56
Podłoga (mm)
28
Rodzaj dachu
dwuspadowy
Liczba pięter
parterowy
1x Drzwi zewnętrzne wymiar (cm)
156x198
5x Okna wymiar (cm)
2 szt 156x105, 1 szt 60x51, 2 szt 60x185
2x Drzwi wewnętrzne wymiar (cm)
81x198
86500
Zł (Cena brutto)Drewniany domek Olivia R z podwójnego balika:
- Wymiary zewnętrzne: 5,9x5,9m
- Wymiary wewnętrzne: 5,28х5,28m
- Grubość ścian: 210mm
Dodatkowo oferujemy transport.
Całoroczne domki oferowane przez firmę Avahouse to synonim komfortu i ciepła przez wszystkie sezony. Nasze domki wyróżniają się zaawansowaną konstrukcją, obejmującą następujące elementy:

- Podwójne ściany, każda o grubości 45 mm: Gwarantują one solidną i wytrzymałą strukturę, która skutecznie chroni przed warunkami atmosferycznymi.
- Izolacja o grubości 120 mm: Zapewnia doskonałą efektywność termiczną, skutecznie utrzymując optymalne temperatury wewnątrz domku przez cały rok.
- Materiały izolacyjne: W naszych domkach zazwyczaj stosujemy celulozę lub wełnę mineralną, aby zapewnić najwyższą jakość izolacji i komfort użytkowania.
Wymiary zewnętrzne (m)
6 x 6
Powierzchnia użytkowa bez tarasu (m) /powierzchnia, m²
5,28x5,28/27,8
Grubość ściany (mm)
45+120+45
Deski dachowe (mm)
20
Ściany boczne, wysokość (m)
2,52
Kąt nachylenia dachu
16/22 stopni
Legary (podwaliny) (mm)
tak/impregnowane/45*120
Powierzchnia dachu (m²)
55
Wymiar pokoju 1, (m) / Powierzchnia, (m²)
3,135x5,28/16,55
Wymiar pokoju 2, (m) / Powierzchnia, (m²)
2,10x3,635/7,6
Wymiar pokoju 3, (m) / Powierzchnia, (m²)
2,10x1,60/3,4
Wymiary wewnętrzne (m)
5,28x5,28
Materiał budowlany
sosna i świerk naturalny
Powierzchnia domku (m²)
27,8
Wypust dachu (m)
0,5
Wysokość w szczycie (m)
3,56
Podłoga (mm)
28
Rodzaj dachu
dwuspadowy
Liczba pięter
parterowy
1x Drzwi zewnętrzne wymiar (cm)
156x198
5x Okna wymiar (cm)
2 szt 156x105, 1 szt 60x51, 2 szt 60x185
2x Drzwi wewnętrzne wymiar (cm)
81x198
86500
Zł