+48 723 568 558 +48 797 864 298 Postępu 15, 05-500 Nowa Wola info@avahouse.pl

















Dom Całoroczny Montblanc - Twój Komfortowy Azyl przez Cały Rok! 

Szukasz idealnego miejsca do zamieszkania lub wypoczynku? Dom całoroczny Montblanc to doskonałe rozwiązanie, które łączy w sobie nowoczesny design, funkcjonalność i przyjemną atmosferę. Dzięki przestronnym pomieszczeniom i estetycznemu wykończeniu, ten dom będzie idealnym miejscem dla Ciebie i Twojej rodziny.


 Dane techniczne, które przyciągają uwagę:

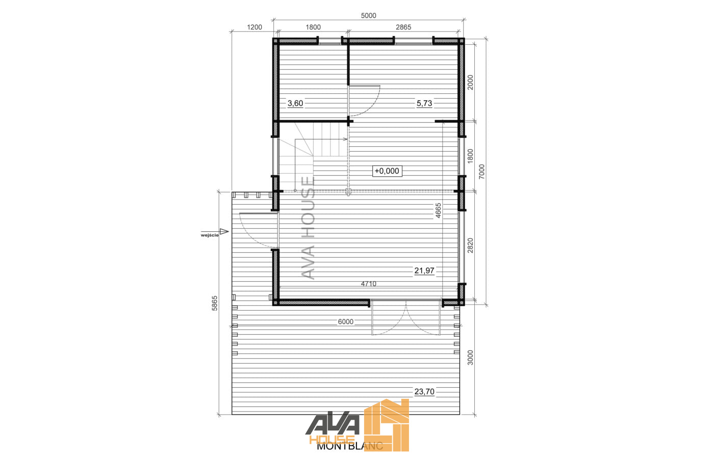
  • Wymiary zewnętrzne: 5,0 x 7,0 m 
  • Wymiary wewnętrzne: 4,71 x 6,71 m 
  • Materiał budowlany: Naturalny świerk, zapewniający trwałość i estetykę. 
  • Powierzchnia domku: 59,44 m² — wystarczająco dużo miejsca na komfortowe życie.
  • Powierzchnia dachu: 51 m² z kątem nachylenia 32° — elegancki wygląd i funkcjonalność. 
  • Wysokość w szczycie: 5,40 m oraz wysokość ścian bocznych: 3,97 m — przestronność i swoboda w użytkowaniu. 
  • Grubość ścian: 45 + 100 + 20 mm — doskonała izolacja termiczna na każdą porę roku. 
  • Wypust dachu: 0,2 m — dodatkowa ochrona przed warunkami atmosferycznymi.

 Taras i wygodne pomieszczenia:

  • Wymiary tarasu: 6 x 3,0 m + 1,2 x 2,865 m (powierzchnia: 23,70 m²), idealny na relaksujący wypoczynek na świeżym powietrzu.
  • Rozkład pomieszczeń:
    • Pokój 1: 4,71 x 4,665 m / Powierzchnia: 21,97 m²
    • Pokój 2: 2,865 x 2,0 m / Powierzchnia: 5,73 m²
    • Pokój 3: 1,8 x 2,0 m / Powierzchnia: 3,60 m²
    • Pokój 4: 4,71 x 4,665 m / Powierzchnia: 18,72 m²
    • Pokój 5: 4,71 x 2,0 m / Powierzchnia: 9,42 m²

Funkcjonalne drzwi i okna:

  • Drzwi zewnętrzne: 1 x 90 x 200 cm (PVC) 
  • Drzwi wewnętrzne: 2 x 83 x 200 cm 
  • Okna: 1 x 190 x 198 cm, 1 x 190 x 184 cm, 1 x 100 x 184 cm, 3 x 100 x 103 cm, 1 x 60 x 49 cm

 Wysoka jakość wykonania:
Domek Montblanc w stanie surowym zamkniętym zawiera:

  • Ściany z balika 44 mm,
  • Ocieplenie z wełny mineralnej,
  • Drewniane drzwi zewnętrzne i wewnętrzne,
  • Impregnacja zewnętrzna 1-krotna
  • Okna PVC z podwójną szybą,
  • Ścianki działowe oraz drewnianą podłogę,
  • Drewniany dach pokryty membraną i blachodachówką falistą
  • Drewniane schody proste
  • Drewniana podłoga
  • Rynny PVC, 
  • Taras z pergolą, 

Transport i dodatkowe usługi:

  • Transport: Cena uzależniona od miejsca dostawy, liczona od Nowej Woli 05-500.
  • Wprowadzenie elektryki i hydrauliki do domku w cenie montażu.
  • Termin montażu: uzgadniany indywidualnie z klientem.
  • Czas trwania montażu: od 12 do 15 dni, z ociepleniem i wylaniem płyty fundamentowej.

Zainwestuj w dom całoroczny Montblanc od Avahouse i ciesz się komfortem oraz urokami natury przez cały rok! 

Wymiary zewnętrzny (m)

5,0x7,0

Wymiary tarasu, m

6х3,0 + 1,2х2,865

Ściana, grubość (mm)

45+100+20\30

Deski dachowe (mm)

20

Wypust dachu (m)

0,2

Powierzchnia tarasu (m2)

23,70

Wysokość w szczycie, m

5,40

Legary (podwaliny), mm

tak/impregnowane/45x95

Powierzchnia fundamentu (m2)

54,10

1хDrzwi zewnętrzne PVC wymiar (cm)

90х200

2xDrzwi wewnętrzne wymiar (cm)

83x200

Rozmiar pokoju 1, m / Powieszchnia, m2

4,71x4,665/21,97

Rozmiar pokoju 2, m / Powieszchnia, m2

2,865x2,0/5,73

Rozmiar pokoju 3, m / Powieszchnia, m2

1,8x2,0/3,60

Rozmiar pokoju 4, m / Powieszchnia, m2

4,71x4,665/18,72

Rozmiar pokoju 5, m / Powieszchnia, m2

4,71x2,0/9,42

Wymiary wewnętrzny (m)

4,71x6,71

Materiał budowlany

naturalny Świerk

Powierzchnia domku (m2)

59,44

Powierzchnia dachu (m2)

51

Szerokość tarasu (m)

3,0\1,2

Ściany boczne, wysokość (m)

3,97

Kąt nachylenia dachu

32

Podłoga (mm)

tak/28

Płyta OSB, szt

18

1xOkna wymiar PVC (cm)

190x198

1xOkna wymiar PVC (cm)

190x184

1xOkna wymiar PVC (cm)

100x184

3xOkna wymiar PVC (cm)

100x103

1xOkna wymiar PVC (cm)

60x49

189000

(Cena brutto)
U nas kupisz na raty, wyślij formularz z adnotacją „na raty”, a nasz specjalista skontaktuje się z Tobą

Imię

E-mail

Telefon

Wiadomość

    

















Dom Całoroczny Montblanc - Twój Komfortowy Azyl przez Cały Rok! 

Szukasz idealnego miejsca do zamieszkania lub wypoczynku? Dom całoroczny Montblanc to doskonałe rozwiązanie, które łączy w sobie nowoczesny design, funkcjonalność i przyjemną atmosferę. Dzięki przestronnym pomieszczeniom i estetycznemu wykończeniu, ten dom będzie idealnym miejscem dla Ciebie i Twojej rodziny.


 Dane techniczne, które przyciągają uwagę:

  • Wymiary zewnętrzne: 5,0 x 7,0 m 
  • Wymiary wewnętrzne: 4,71 x 6,71 m 
  • Materiał budowlany: Naturalny świerk, zapewniający trwałość i estetykę. 
  • Powierzchnia domku: 59,44 m² — wystarczająco dużo miejsca na komfortowe życie.
  • Powierzchnia dachu: 51 m² z kątem nachylenia 32° — elegancki wygląd i funkcjonalność. 
  • Wysokość w szczycie: 5,40 m oraz wysokość ścian bocznych: 3,97 m — przestronność i swoboda w użytkowaniu. 
  • Grubość ścian: 45 + 100 + 20 mm — doskonała izolacja termiczna na każdą porę roku. 
  • Wypust dachu: 0,2 m — dodatkowa ochrona przed warunkami atmosferycznymi.

 Taras i wygodne pomieszczenia:

  • Wymiary tarasu: 6 x 3,0 m + 1,2 x 2,865 m (powierzchnia: 23,70 m²), idealny na relaksujący wypoczynek na świeżym powietrzu.
  • Rozkład pomieszczeń:
    • Pokój 1: 4,71 x 4,665 m / Powierzchnia: 21,97 m²
    • Pokój 2: 2,865 x 2,0 m / Powierzchnia: 5,73 m²
    • Pokój 3: 1,8 x 2,0 m / Powierzchnia: 3,60 m²
    • Pokój 4: 4,71 x 4,665 m / Powierzchnia: 18,72 m²
    • Pokój 5: 4,71 x 2,0 m / Powierzchnia: 9,42 m²

Funkcjonalne drzwi i okna:

  • Drzwi zewnętrzne: 1 x 90 x 200 cm (PVC) 
  • Drzwi wewnętrzne: 2 x 83 x 200 cm 
  • Okna: 1 x 190 x 198 cm, 1 x 190 x 184 cm, 1 x 100 x 184 cm, 3 x 100 x 103 cm, 1 x 60 x 49 cm

 Wysoka jakość wykonania:
Domek Montblanc w stanie surowym zamkniętym zawiera:

  • Ściany z balika 44 mm,
  • Ocieplenie z wełny mineralnej,
  • Drewniane drzwi zewnętrzne i wewnętrzne,
  • Impregnacja zewnętrzna 1-krotna
  • Okna PVC z podwójną szybą,
  • Ścianki działowe oraz drewnianą podłogę,
  • Drewniany dach pokryty membraną i blachodachówką falistą
  • Drewniane schody proste
  • Drewniana podłoga
  • Rynny PVC, 
  • Taras z pergolą, 

Transport i dodatkowe usługi:

  • Transport: Cena uzależniona od miejsca dostawy, liczona od Nowej Woli 05-500.
  • Wprowadzenie elektryki i hydrauliki do domku w cenie montażu.
  • Termin montażu: uzgadniany indywidualnie z klientem.
  • Czas trwania montażu: od 12 do 15 dni, z ociepleniem i wylaniem płyty fundamentowej.

Zainwestuj w dom całoroczny Montblanc od Avahouse i ciesz się komfortem oraz urokami natury przez cały rok! 

Wymiary zewnętrzny (m)

5,0x7,0

Wymiary tarasu, m

6х3,0 + 1,2х2,865

Ściana, grubość (mm)

45+100+20\30

Deski dachowe (mm)

20

Wypust dachu (m)

0,2

Powierzchnia tarasu (m2)

23,70

Wysokość w szczycie, m

5,40

Legary (podwaliny), mm

tak/impregnowane/45x95

Powierzchnia fundamentu (m2)

54,10

1хDrzwi zewnętrzne PVC wymiar (cm)

90х200

2xDrzwi wewnętrzne wymiar (cm)

83x200

Rozmiar pokoju 1, m / Powieszchnia, m2

4,71x4,665/21,97

Rozmiar pokoju 2, m / Powieszchnia, m2

2,865x2,0/5,73

Rozmiar pokoju 3, m / Powieszchnia, m2

1,8x2,0/3,60

Rozmiar pokoju 4, m / Powieszchnia, m2

4,71x4,665/18,72

Rozmiar pokoju 5, m / Powieszchnia, m2

4,71x2,0/9,42

Wymiary wewnętrzny (m)

4,71x6,71

Materiał budowlany

naturalny Świerk

Powierzchnia domku (m2)

59,44

Powierzchnia dachu (m2)

51

Szerokość tarasu (m)

3,0\1,2

Ściany boczne, wysokość (m)

3,97

Kąt nachylenia dachu

32

Podłoga (mm)

tak/28

Płyta OSB, szt

18

1xOkna wymiar PVC (cm)

190x198

1xOkna wymiar PVC (cm)

190x184

1xOkna wymiar PVC (cm)

100x184

3xOkna wymiar PVC (cm)

100x103

1xOkna wymiar PVC (cm)

60x49

189000 (Cena brutto)
U nas kupisz na raty, wyślij formularz z adnotacją „na raty”, a nasz specjalista skontaktuje się z Tobą

Imię

E-mail

Telefon

Wiadomość

    

189000

Kup